Glass Star,位于首尔城南郡Seongjeong-dong,是一家多年来一直保持在同一个地方的眼镜商店。凭借多样化的客户群,它提供了广泛的品牌,从年轻顾客青睐的品牌到儿童和运动眼镜。因此,它是一个欢迎所有年龄段的人都可以舒适地参观、联系和购物的空间。
我们的设计旅程始于一个问题:我们如何有效地表达定义Glass Star的“多样性”?眼镜是一个熟悉的物体,然而当你更深入地思考它们时,它们揭示了一些迷人的东西。擦拭一副眼镜清除了模糊的视野,逐渐照亮了一个人的视线,仿佛在框内揭示了一个全新的世界。


眼镜这一基本特征——其能够提供“多样化的视野”——成为了我们概念的基础。我们设想了一个沉浸式的零售空间,顾客可以像欣赏艺术作品一样欣赏眼镜,仿佛在参观展览。这个想法变成了“Spectacle Scenery”这一概念,将浏览眼镜的体验转变成一个超越平凡的视觉盛宴。

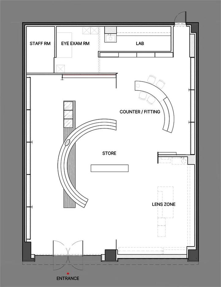
该店铺面积约为160平方米,必须在保留现有镜片区的同时进行翻新。为了确保镜片区与新设计的空间无缝融合,我们采用了对比鲜明的黑白色调。这使顾客在进入店铺时能够直观地区分眼镜销售区和镜片销售区。





展示方法简约而有效。为了展现Glass Star的多样性,我们采用了干净简洁的设计语言。这确保了顾客可以轻松地在店内浏览并找到他们需要的商品而不会感到困惑。在空间的中心,两个半圆形的岛式展示台以简单而精致的方式反映了眼镜的结构本质。
头顶上,圆形的Barrisol灯光增强焦点并创造深度,为店铺增添特色。墙壁的结构代表了眼镜的组装过程,自然地划分了空间,并允许每个品牌在指定区域展示。虽然展示方法仍然清晰明了,但几何形状引入了动态的视觉体验。当顾客在空间中移动时,他们遇到各种各样的观点——就像在画廊里散步一样——使一次普通的购物之旅变成了一次身临其境的独特体验。




立面设计旨在最大限度地提高可见性,使内部可以从外部轻松注意到。在充满鲜艳标识的景观中,Glass Star的干净和开放的立面确保了店铺脱颖而出,自然地吸引了路人的注意。设计本身成为品牌的一个标志性元素。









在材料选择上,我们在引入温暖色调以柔化整体氛围的同时,平衡了对比鲜明的色调。我们选择了木制HPL和石材地板,以提供自然、稳重的感觉,并在较冷的色调中增加温暖。此外,还在中央岛台展示区旁设置了亚克力长凳,为到访者提供一个可以暂停休息的舒适场所——就像在艺术画廊中浏览时的休息点。通过这次翻新,我们旨在为现有客户重新定义Glass Star的品牌形象,同时为首次到访的客人创造难忘的体验——一种在他们离开后仍留在他们记忆中的体验。









△平面图
【免责声明】本文来源于互联网,版权归原作者所有,内容仅供交流与学习,不构成任何商业目的。版权归原作者所有,如涉及作品内容、版权和其它问题,请及时与本站联系,我们将在第一时间处理。谢谢!
推荐阅读:
店面设计:美学忠于环境!
https://www.onewedesign.com/sisheji/72-3314.html
什么是店面设计
https://www.onewedesign.com/sisheji/72-3420.html