前言
中华人民共和国国家标准
地铁设计防火标准
Standard for fire protection design of metro
GB 51298-2018
主编部门:中华人民共和国公安部
批准部门:中华人民共和国住房和城乡建设部
施行日期:2018年12月1日
中华人民共和国住房和城乡建设部公告
2018年 第89号
住房城乡建设部关于发布国家标准《地铁设计防火标准》的公告
现批准《地铁设计防火标准》为国家标准。编号为GB 51298—2018,自2018年12月1日起实施。其中,第4.1.1、4.1.4、4.1.5、5.1.1、5.1.4、5.1.11、5.4.2、5.4.3、5.5.5、8.4.7、9.5.4、11.1.1、11.1.5条为强制性条文,必须严格执行。
本标准在住房城乡建设部门户网站(http://www.mohurd.gov.cn)公开,并由住房城乡建设部标准定额研究所组织中国计划出版社出版发行。
中华人民共和国住房和城乡建设部
2018年5月14日
根据住房城乡建设部《关于印发<2008年工程建设标准规范制订、修订计划(第一批)>的通知》(建标[2008]102号文)的要求,由上海市隧道工程轨道交通设计研究院、公安部天津消防研究所会同国内地铁设计、科研、建设、运营以及市消防监督等10家单位共同编制。
本标准的编制遵循国家有关基本建设方针政策,贯彻“预防为主、防消结合”的消防工作方针,在总结国内已建成通车地铁线的消防实践经验和教训的基础上,广泛征求了有关地铁设计、建设、运营、科研院校、消防监督等方面的意见,借鉴国外有关规范标准,最后经审查定稿。
本标准共分11章,主要内容包括:总则,术语,总平面布局,建筑的耐火等级与防火分隔,安全疏散,建筑构造,消防给水与灭火设施,防烟与排烟,火灾自动报警,消防通信和消防配电与应急照明。
本标准中以黑体字标志的条文为强制性条文,必须严格执行。
本标准由住房城乡建设部负责管理和对强制性条文的解释,公安部负责日常管理,上海市隧道工程轨道交通设计研究院负责具体技术内容的解释。希望各单位在执行过程中,结合工程实践和科学研究,总结经验,积累资料。如发现需要修改和补充之处,请将有关意见、建议和资料径寄上海市隧道工程轨道交通设计研究院《地铁设计防火标准》管理组(地址:上海市中山西路1999号,邮政编码:200235,电话:021-33633685,传真:021-33633610)。以供今后修订时参考。
本标准主编单位、参编单位、主要起草人和主要审查人:
主编单位:上海市隧道工程轨道交通设计研究院
公安部天津消防研究所
参编单位:住房和城乡建设部地铁与轻轨研究中心
北京城建设计研究总院有限责任公司
上海市消防局
北京市消防局
上海申通轨道交通研究咨询有限公司
中铁二院工程集团有限责任公司
北京市轨道交通建设管理有限公司
广州地铁设计研究院有限公司
成都地铁有限责任公司
中国建筑科学研究院
主要起草人:俞加康 倪照鹏 郑晋丽 刘激扬 马恒 沈纹 王燕平 黄仁勇 周晓玲 张国芳 王晨 俞炜 杨玲 路世昌 刘庭全 秦国栋 张素燕 董立新 任静 沈友弟 胡峥 李云浩 王曰凡 冯娟 柴家远 巩云 史海欧 王迪军 陈中 李宏文 李磊
主要审查人:焦桐善 朱军 庄荣 于波 黄文昕 崔志强 黎锦雄 诸敬止陈韶章 孙建明 郑鸣 曹俊文 沈育祥 包国兴 许斯河 徐正良 黄桂兴 赵克伟 王丹晖 石芳
条文说明
编制说明
《地铁设计防火标准》GB 51298—2018,经住房城乡建设部2018年5月14日以第89号公告批准发布。
本标准制订过程中,编制组进行了广泛的调查研究,总结了我国地铁设计防火实践经验,同时参考了国外先进技术和技术标准。
为了便于广大设计、施工、科研和学校等单位有关人员在使用本标准时能正确理解和执行条文规定,《地铁设计防火标准》编制组按章、节、条顺序编制了本标准的条文说明,对条文规定的目的、依据及执行中需注意的有关事项进行了说明,还着重对强制性条文的强制性理由做了解释。但是,本条文说明不具备与标准正文同等的法律效力,仅供使用者作为理解和把握标准规定的参考。
1 总则
1.0.1 为预防地铁火灾、减少地铁火灾危害,保护人身和财产的安全,制定本标准。
1.0.2 本标准适用于新建、扩建地铁和轻轨交通工程的防火设计。
1.0.3 一条线路、一座换乘车站及其相邻区间的防火设计可按同一时间发生一处火灾考虑。
1.0.4 防火设计应遵循国家有关方针政策,从全局出发,统筹兼顾,做到安全适用、技术先进、经济合理。
1.0.5 地铁和轻轨交通工程的防火设计除应符合本标准的规定外,尚应符合现行国家有关标准的规定。
条文说明
1.0.1 本条规定了制定本标准的目的。地铁是一种大容量、快捷、规模浩大的交通性公共建筑。当车站和区间位于地下时,空间封闭,通道狭长,无法形成天然采光和自然通风与排烟。一旦地铁工程内发生火灾,不良的物理环境造成人员疏散和灭火救援极为困难。本标准着重对地下车站、地下区间的防火分区、防火分隔、安全疏散、建筑构造以及相配套的设施进行了规范,以提高火灾时乘客的生还率和最大限度减少财产损失。
1.0.2 本标准的适用范围包括城市轨道交通工程中采用钢轮钢轨系列的新建地铁、轻轨工程和采用钢轮钢轨系列的既有地铁或轻轨运营线的延伸扩建工程的防火设计。对既有地铁和轻轨工程的改建,考虑到地下部分情况复杂,本标准中的某些要求难以实现,故未予明确。在实际地铁和轻轨工程的改造建设中,需要根据工程的实际情况研究并尽量采用本标准的相应技术要求,而对这些工程的地上部分,一般均不存在困难,因此可以按照本标准的要求进行设计。
1.0.3 根据国内外地铁工程中火灾的发生情况,综合考虑安全与经济等方面的因素,本条规定一条地铁线或者一座换乘车站以及该车站的相邻区间考虑同一时间内只有一处发生火灾,比如:区间火灾时,不考虑相邻车站和相邻区间火灾;站台公共区火灾时,不考虑站厅公共区火灾;站厅公共区火灾时,不考虑站台公共区火灾;公共区火灾时,不考虑设备管理区火灾;设备管理区的火灾也只考虑单间设备房发生火灾。至于换乘车站及相邻区间,也只考虑同一时间内仅一处发生火灾。同一时间只考虑一处发生火灾的范围,不包括考虑车站配线区上方的其他建筑、与站厅公共区相邻接的商业等非地铁功能场所。
1.0.5 地铁和轻轨交通工程的防火设计涉及多个不同专业的协调与配合,相互间紧密配合,共同保障与实现地铁和轻轨交通工程的功能,以及其中不同用途区域的防火安全需要和目标。本标准规定了新建、扩建的地铁和轻轨交通工程的防火设计的基本要求,还有不少要求不是由本标准来规定,因此设计还需与其他标准配合进行。与本标准密切相关的标准,除本标准在“引用标准名录”中给出的外,尚有现行国家标准《地铁设计规范》GB 50157、《建筑照明设计标准》GB 50034、《工业建筑供暖通风与空气调节设计规范》GB 50019、《民用建筑供暖通风与空气调节设计规范》GB 50736、《细水雾灭火系统技术规范》GB 50898和《气体灭火系统设计规范》GB 50370等工程建设技术标准以及有关建筑防火和地铁列车的产品技术标准等。
2 术语
2.0.1 安全出口 safety exit
供人员安全疏散,并能直接通向室内外安全区域的车站出口、楼梯或扶梯的出口、联络通道的入口、区间风井内直通地面的楼梯间入口。
2.0.2 点式换乘车站 transfer station by cross-platform
站台与站台之间以点式相交形式换乘的车站。
2.0.3 路堑式车站、区间 open cut station,track
浅埋地下一层,外墙上方或顶板开窗、具备自然通风和排烟条件的车站、区间。
2.0.4 联络通道 cross-passageway
连接相邻两条单洞单线载客运营地下区间、可供人员安全疏散用的通道。
2.0.5 消防专用通道 fire access
供消防人员从地面进入站厅、站台、区间等区域进行灭火救援的专用通道和楼梯间。
2.0.6 纵向疏散平台 longitudinal evacuation walkway
在区间内平行于线路并靠站台侧设置、供人员疏散用的纵向连续走道。
条文说明
2.0.1 安全出口是乘客在火灾时能疏散到安全区的出口、楼梯或扶梯和通道,如车站站台到站厅公共区的楼梯或扶梯;站厅公共区至地面的出口;设置在地下区间之间,能使着火区间的乘客向非着火区间疏散的联络通道;当地下区间内设置区间风井时,井内设置的直达地面的防烟楼梯间。设置在高架车站站台并与区间纵向疏散平台相连接的站台门的端门,也可以作为站台的安全出口。
2.0.2 点式换乘车站是指站台与站台之间采用点式相交换乘,不包括同站台平行换乘形式的车站。两线点式换乘的基本形式有十字、T字、L形等,两线以上点式换乘的基本形式有△、冂、Y、H、卅形等。
2.0.3 路堑式车站和路堑式区间常出现在路中或路侧具有一定宽度的绿化带内。具备自然通风与排烟的地下一层车站,称为路堑式车站;具备自然通风与排烟的地下区间,称为路堑式区间。
2.0.4 联络通道系指设置在不同隧洞之间,连接两条单洞单线地下区间的通道,该通道主要用于检修人员和应急时乘客疏散到相邻较安全的隧洞内,但需要满足火灾时人员安全疏散的需要。当地下区间采用明挖矩形隧道或暗挖单洞双线隧道,并在隧道间设置中间隔墙时,在该中间隔墙上开设的门洞,具有联络通道的功能,可视为联络通道。
2.0.5 消防专用通道是专门用于供消防救援人员在火灾时进入并可以到达地下车站各层和地下区间进行灭火救援的通道,包括楼梯间和水平通道。这种通道可以使救援人员快速进入车站和区间开展灭火救援行动,而不会与地铁内向外疏散的人员交汇,也不会挤占人员的疏散通道和出口。通常,这种通道单独设置在可进入车站有人值守的设备管理区的防火分区内。
2.0.6 纵向疏散平台是设置在地下区间或地上区间,用于乘客在火灾或应急情况下进行疏散的通道。就地下区间而言,除轨道区的道床面可作为乘客疏散通道外,提供纵向疏散平台通道,可提高乘客疏散的安全性。
3 总平面布局
3.1 车站与区间
3.1.1 地上车站建筑的周围应设置环形消防车道,确有困难时,可沿车站建筑的一个长边设置消防车道。
3.1.2 地下车站的出入口、风亭、电梯和消防专用通道的出入口等附属建筑,地上车站、地上区间、地下区间及其敞口段(含车辆基地出入线)、区间风井及风亭等,与周围建筑物、储罐(区)、地下油管等的防火间距应符合现行国家有关标准的规定。
地下车站的采光窗井与相邻地面建筑之间的防火间距应符合表3.1.2的规定,当相邻地面建筑物的外墙为防火墙或在采光窗井与地面建筑物之间设置防火墙时,防火间距不限。
表3.1.2 地下车站的采光窗井与相邻地面建筑之间的防火间距(m)

3.1.3 地下车站的进风、排风和活塞风采用高风亭时,风口的位置应符合下列规定:
1 排风口、活塞风口应高于进风口;
2 进风口、排风口、活塞风口两两之间的最小水平距离不应小于5m,且不宜位于同一方向。
3.1.4 采用敞口低风井的进风井、排风井和活塞风井,风井之间、风井与出入口之间的最小水平距离应符合下列规定:
1 进风井与排风井、活塞风井之间不应小于10m;
2 活塞风井之间或活塞风井与排风井之间不应小于5m;
3 排风井、活塞风井与车站出入口之间不应小于10m;
4 排风井、活塞风井与消防专用通道出入口之间不应小于5m。
3.1.5 采用敞口低风井的排风井、活塞风井宜设置在地下车站出入口、进风井的常年主导风向的下风侧。
3.1.6 独立建造的消防水泵房应符合现行国家标准《建筑设计防火规范》GB 50016的规定。地上车站的消防水泵房宜布置在首层,当布置在其他楼层时,应靠近安全出口;地下车站的消防水泵房应布置在站厅层及以上楼层,并宜布置在站厅层设备管理区内的消防专用通道附近。
条文说明
3.1.1 本条参照现行国家标准《建筑设计防火规范》GB 50016,规定了地面车站和高架车站消防车道的基本要求。
3.1.2 本条规定了整个地铁线(除车辆基地、主变电所、控制中心外)及其附属建筑与周围建筑物、储罐(区)、地下油管等之间的防火间距的基本要求。这些间距在其他专业标准中均有明确规定,设计时需要根据建筑的使用性质和规模等按相应国家标准的要求确定。比如,地铁工程与汽车加油加气站的防火间距就应符合现行国家标准《汽车加油加气站设计与施工规范》GB 50156的规定。
3.1.3 地下车站出地面的高风亭多在风亭的侧面开设风口。因此,不论风亭是与其他建筑合建,还是单独分散式设置,高风亭的排风口和活塞风口均应该位于新风口的上面,防止产生倒灌现象。在本条的各款中,各风口之间的净距均指风口间的最小垂直高差或最小水平距离;当风口之间同时存在水平距离和垂直高差时,可以采用风口之间的斜向最小净距。为减小烟气流倒灌,风口要尽量避免开设在同一方向。
本条的要求不适用于风口面对面布置的情形。
3.1.4 地下车站有条件时,要尽量采用高风亭进行通风和排烟。当受周边的特殊环境限制,需要采用敞口低风井时,本条规定了各风井之间以及各风井与出入口之间的最小水平净距。对于火灾工况,如不能有效防止烟气流倒灌时,要尽量拉开风井之间或风井与出入口之间的距离。当用地受限,不能加大距离或工艺上较难实施时,可以通过在两风井之间或风井与出入口之间种植高低错落的绿化以形成绿化屏障来阻挡、减弱火灾时的烟气倒灌(见图1)。

图1 各敝口低风井之间最小水平距离示意图
注:“排”指排风井,“活”指活塞风井,“进”指进(新)风井。
3.1.5 本条规定旨在防止自然风向影响地铁车站的排烟效果,避免造成烟气流倒灌。由于车站的布置方位不一,有条件的车站要尽量按照本条规定的要求布置排风井和活塞风井,或者调整车站的出入口与进风井。
3.1.6 本条规定主要为方便地铁管理人员和消防救援人员能安全进入消防水泵房,并进行自动、手动控制消防水泵的运行,同时避免消防水泵房被水淹。消防水泵房布置的一般做法有:对于路侧地面和路侧高架车站,布置在地面层;对于路中高架车站,布置在高架二层站厅层设备管理区;对于地下车站,布置在站厅层设置车站控制室及消防专用通道的防火分区内。
3.2 控制中心与主变电所
3.2.1 独立建造的控制中心、地上主变电所应设置环形消防车道,确有困难时,可沿建筑的一个长边设置消防车道。
3.2.2 控制中心宜独立建造,不应与商业、娱乐等人员密集的场所合建,并应避开易燃、易爆场所;确需与其他建筑合建时,控制中心应采用无门窗洞口的防火墙与建筑的其他部分分隔。
3.2.3 主变电所应独立建造。
条文说明
3.2.1 地铁控制中心和地上主变电所一般为独立的地上建筑,有关消防车道的设置要求是根据现行国家标准《建筑设计防火规范》GB 50016的相关要求确定的。对于与其他建筑合建的控制中心,其消防车道的设置则要根据所在建筑的高度和规模、使用性质,按照现行国家标准《建筑设计防火规范》GB 50016等标准的要求确定。
3.2.2 控制中心是对地铁全线的设备运行进行集中监视、控制、协调、指挥、调度和管理的场所,地位极为重要。目前,城市扩张迅速,用地越来越紧张,致使地铁的控制中心越来越多地与其他建筑合建在一起。为确保控制中心的安全,要尽量与火灾危险性较小的场所合建,避免与火灾危险性较大的场所合建。本条规定控制中心不应与商业、娱乐等类似建筑或场所合建,要求远离生产、储存、使用和经营易燃、易爆物质的场所。
当控制中心楼与其他建筑合建时,应分别作为不同的功能区,相互完全独立,即除室外的消防给水、消防车道和防火间距等外,其内部的防火要求均相互独立,只在消防控制室进行火灾和控制信息等进行集中管理。即使与地铁办公用房合建,也要符合这一要求。
3.2.3 地铁不仅是重要的城市交通设施,而且往往是人员聚集的场所。本条规定在于保证地铁供电的安全,避免对社会生产、生活,甚至社会秩序产生较大不良影响。目前,我国地铁主变电所的电源一般来自地区110kV或35kV电源,其主变压器大多采用油浸式变压器,对防火和消防设施要求较高。此外,主变电所内集中设置了较多的大电流、高电压设备,对防电磁辐射的要求较高。要求主变电所独立建造,不仅有利于安全,而且便于设备的运行维护和突发故障的检修。
3.3 车辆基地
3.3.1 车辆基地应避免设置在甲、乙类厂(库)房和甲、乙、丙类液体、可燃气体储罐及可燃材料堆场附近。
3.3.2 车辆基地的总平面布置应以车辆段(停车场)为主体,根据功能需要及地形条件合理确定基地内各建筑的位置、防火间距、运输道路和消防水源等。
3.3.3 车辆基地内的消防车道除应符合现行国家标准《建筑设计防火规范》GB 50016的规定外,尚应符合下列规定:
1 车辆基地内应设置不少于2条与外界道路相通的消防车道,并应与基地内各建筑的消防车道连通成环形消防车道。消防车道不宜与列车进入咽喉区前的出入线平交。
2 停车库、列检库、停车列检库、运用库、联合检修库、物资总库及易燃物品库周围应设置环形消防车道。
3 停车库、列检库、停车列检库、运用库、联合检修库每线列位在两列或两列以上时,宜在列位之间沿横向设置可供消防车通行的道路;当库房的各自总宽度大于150m时,应在库房的中间沿纵向设置可供消防车通行的道路。
3.3.4 车辆基地不宜设置在地下。当车辆基地的停车库、列检库、停车列检库、运用库、联合检修库等设置在地下时,应在地下设置环形消防车道;当库房的总宽度不大于75m时,可沿库房的一条长边设置地下消防车道,但尽头式消防车道应设置回车道或回车场,回车场的面积不应小于15m×15m。
地下消防车道与停车库、列检库、停车列检库、运用库、联合检修库之间应采用耐火极限不低于3.00h的防火墙分隔。防火墙上应设置消防救援入口,入口处应采用乙级防火门等进行分隔。
3.3.5 易燃物品库应独立布置,并应按存放物品的不同性质分库设置。
条文说明
3.3.1 车辆基地是地铁车辆维修、停放、运用管理以及办公、培训的场所,其占地和建筑规模都很大,建筑内的使用人员多,停放车辆和储存物资也多,一旦发生火灾且未被有效控制,可能导致大的人身伤亡和财产损失,影响轨道交通的运行秩序。本条从保障车辆基地安全出发,规定了车辆基地在选址时要尽量避开有火灾和爆炸危险且火灾难以控制的高危险场所;当不可避免时,要根据相关国家标准的要求采取相应的防护措施。
3.3.2 一条地铁线的车辆基地根据功能要求,一般分设为一个车辆段、一个或几个停车场,其主要功能是用于地铁列车的停放和检修。因此车辆基地的总平面布局要以车辆段为主体来考虑,并在满足方便车辆进出、通风与采光、应急救援和方便建筑间的工作联系等的基础上,根据周围的地形条件和天然水体、城市道路与市政供水管网等市政设施的建设情况、基地内各建筑的面积需要和火灾危险性类别等来确定基地内各建筑之间的相对位置以及基地内的联系道路和消防车道、消防水池、消防水泵房及消防控制室等的布置位置。
车辆基地内各建筑物之间的防火间距、运输道路和消防水池均应满足现行国家标准《建筑设计防火规范》GB 50016等标准的规定。
3.3.3 由于列车进出频繁,为避免列车进入咽喉区前的出入线在火灾时影响消防车的通行,消防车道与列车出入线相交时要尽量采用立体交叉方式。车辆基地内的轨道线较多,消防车道与地铁列车线路不可避免要平交;当平交时,要按照现行国家标准《建筑设计防火规范》GB 50016中有关消防车道与铁路平交时的要求设置备用消防车道。
目前,车辆基地内的主要建筑一般都能满足本条规定,但仍有少量建筑,如洗车机库、试车机具间等规模比较小的生产建筑,由于工艺要求或者用地条件限制,往往需要布置在多条线路之间,执行本条规定会比较困难。考虑这些建筑规模较小,火灾危险性较低,在受条件限制不能设置备用消防车道时,需要事先与当地消防监督部门协商。
一些大型的停车库、列检库、运用库、联合检修库等的宽度(即建筑的横向)往往大于150m。为确保消防车在灭火救援时能快速调度和到达建筑的另一条长边,需要在宽度大于150m的库房的中间适当位置沿与轨道平行的方向设置穿过建筑可供消防车通行的道路。
本条中“库房的中间”位置不是严格的建筑边长的中点,而是视建筑的柱距布置和内部停放列车的长度等情况,在建筑中部确定的一个合适位置;本条中的“横向”是指垂直于列车轨道的方向,“纵向”是指平行于列车轨道的方向。
3.3.4 本条规定是为了保证消防车在任何情况下都能顺利到达着火建筑物周围进行灭火,并使建筑具有良好的排烟、排热和天然采光条件,故要求尽量布置在地上。
3.3.5 车辆基地内的易燃物品库多用于存放油漆涂料、溶剂、胶水、酒精、汽油、油脂、乙炔等易燃化学物品,属于甲、乙类库房。为减小其火灾和爆炸的危害,避免因操作不当等原因引发事故,根据现行国家标准《建筑设计防火规范》GB 50016的有关规定制定了本条要求,有关防火间距和防火分区等的要求均要符合现行国家标准《建筑设计防火规范》GB 50016的规定。
4 建筑的耐火等级与防火分隔
4.1 一般规定
4.1.1 下列建筑的耐火等级应为一级:
1 地下车站及其出入口通道、风道;
2 地下区间、联络通道、区间风井及风道;
3 控制中心;
4 主变电所;
5 易燃物品库、油漆库;
6 地下停车库、列检库、停车列检库、运用库、联合检修库及其他检修用房。
4.1.2 下列建筑的耐火等级不应低于二级:
1 地上车站及地上区间;
2 地下车站出入口地面厅、风亭等地面建(构)筑物;
3 运用库、检修库、综合维修中心的维修综合楼、物质总库的库房、调机库、牵引降压混合变电所、洗车机库(棚)、不落轮镟库、工程车库和综合办公楼等生活辅助建筑。
4.1.3 地下车站的风道、区间风井及其风道等的围护结构的耐火极限均不应低于3.00h,区间风井内柱、梁、楼板的耐火极限均不应低于2.00h。
4.1.4 车站(车辆基地)控制室(含防灾报警设备室)、变电所、配电室、通信及信号机房、固定灭火装置设备室、消防水泵房、废水泵房、通风机房、环控电控室、站台门控制室、蓄电池室等火灾时需运作的房间,应分别独立设置,并应采用耐火极限不低于2.00h的防火隔墙和耐火极限不低于1.50h的楼板与其他部位分隔。
4.1.5 车站内的商铺设置以及与地下商业等非地铁功能的场所相邻的车站应符合下列规定:
1 站台层、站厅付费区、站厅非付费区的乘客疏散区以及用于乘客疏散的通道内,严禁设置商铺和非地铁运营用房。
2 在站厅非付费区的乘客疏散区外设置的商铺,不得经营和储存甲、乙类火灾危险性的商品,不得储存可燃性液体类商品。每个站厅商铺的总建筑面积不应大于100m²,单处商铺的建筑面积不应大于30m²。商铺应采用耐火极限不低于2.00h的防火隔墙或耐火极限不低于3.00h的防火卷帘与其他部位分隔,商铺内应设置火灾自动报警和灭火系统。
3 在站厅的上层或下层设置商业等非地铁功能的场所时,站厅严禁采用中庭与商业等非地铁功能的场所连通;在站厅非付费区连通商业等非地铁功能场所的楼梯或扶梯的开口部位应设置耐火极限不低于3.00h的防火卷帘,防火卷帘应能分别由地铁、商业等非地铁功能的场所控制,楼梯或扶梯周围的其他临界面应设置防火墙。
在站厅层与站台层之间设置商业等非地铁功能的场所时,站台至站厅的楼梯或扶梯不应与商业等非地铁功能的场所连通,楼梯或扶梯穿越商业等非地铁功能的场所的部位周围应设置无门窗洞口的防火墙。
4.1.6 在站厅公共区同层布置的商业等非地铁功能的场所,应采用防火墙与站厅公共区进行分隔,相互间宜采用下沉广场或连接通道等方式连通,不应直接连通。下沉广场的宽度不应小于13m;连接通道的长度不应小于10m、宽度不应大于8m,连接通道内应设置2道分别由地铁和商业等非地铁功能的场所控制且耐火极限均不低于3.00h的防火卷帘。
4.1.7 车辆基地建筑的上部不宜设置其他使用功能的场所或建筑,确需设置时,应符合下列规定:
1 车辆基地与其他功能场所之间应采用耐火极限不低于3.00h的楼板分隔;
2 车辆基地建筑的承重构件的耐火极限不应低于3.00h,楼板的耐火极限不应低于2.00h。
条文说明
4.1.1 本条为强制性条文。地铁的地下工程是人流密集的封闭空间;控制中心、主变电所是地铁极为重要的组成部分;易爆、易燃的库房危险性大,且大多设置在车辆基地内;设置在地下的停车库、检修用房等库房,通常规模大且位于地下,救援难度和排烟排热难度大。因此,本条参照现行国家标准《建筑设计防火规范》GB 50016和《人民防空工程设计防火规范》GB 50098的规定,将这些建筑的耐火等级确定为一级。建筑的耐火等级的分级应符合现行国家标准《建筑设计防火规范》GB 50016的规定。
4.1.2 本条所规定的建筑为地铁工程中除控制中心、主变电所外的其他地面建(构)筑物。
4.1.3 由于地下区间风井内设有风机等配套设施和供乘客疏散用的楼梯,故对其围护结构的要求按照防火分区的分隔要求确定,而区间风井内的柱、梁、板则考虑到已有较高耐火要求的围护结构保护,参照现行国家标准《建筑设计防火规范》GB 50016有关二级耐火等级建筑的相关要求确定了其耐火性能。
4.1.4 本条为强制性条文。车站控制室、重要电气设备用房以及火灾时仍需运作的房间,对确保地铁安全正常运行和保证故障或火灾时的应急救援行动顺利展开至关重要。因此本条规定参照了现行国家标准《建筑设计防火规范》GB 50016的有关规定,要求这些场所分别单独设置,并进行相应的防火分隔,以确保这些部位不会受到其他区域火灾的影响,防止变电所和配电室等一些火灾危险性较高部位的火灾影响到车站公共区等其他区域的安全。
4.1.5 本条为强制性条文。为充分利用城市地下空间,方便市民的出行和生活,在地下车站和出入口通道内设置商铺,在站厅的上、下层设置商业场所,在与站厅同层的地下设置商业场所等非地铁功能的场所的情形越来越普遍。但是地铁、商业或地下交通换乘场所都是人员聚集的地方,无论哪部分发生火灾都会造成巨大的混乱,加剧人员疏散的困难,很容易造成重大人员伤亡,必须采取严格的措施进行控制,以最大限度地减小火灾的可能危害。
1 地铁的疏散策略与一般的地下建筑有所不同,站台、站厅付费区以及非付费区、出入口通道内的乘客疏散区范围内应最大限度地减少火源,禁止设置商铺和非地铁功能场所。根据本标准的规定,人员能在6min内从站台层到达站厅层就符合要求,而实际上,人员从站厅到达室外还往往有较长的距离。因此,除要确保用于人员疏散和集散的区域不应被占用,确保火灾时人员能快速、安全疏散至地面外,还必须严格控制可能的火灾规模及不利作用。
2 设置在站厅非付费区内的商铺不应处于乘客流线范围内。当在非付费区内设置商业设施时,其使用区域不能与地铁客流所需区域重合。由于小型商业设施仍允许设置在车站公共区内,与公共区之间仅采取了一般防火分隔措施(见图2),因此要限制单处商铺的建筑面积及其总建筑面积。在布置商业设施时,要尽量分开布置,而不要集中连续布置,无论是分开布置还是连续布置,都要保证每间分隔的商业设施的建筑面积小于或等于30m²,所有商业设施的总建筑面积小于或等于100m²。

图2 站厅公共区内设商铺防火隔离示意图
3 当在站厅层与站台层之间或站厅的上一层或下一层上、下重叠布置商业设施或其他非地铁功能的场所时,所有与地铁运营无关的非地铁功能的场所均禁止在站台层或站厅公共区开设中庭或其他洞口与地铁的站台层或站厅层直接连通。
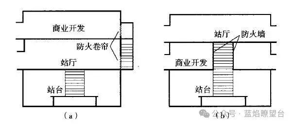
从站台层到站厅层、穿越非地铁功能场所的楼梯或扶梯,或者设置在站厅公共区非付费区内联系非地铁功能场所的楼梯或扶梯,由于楼梯或扶梯周围的空间与其所联系的空间分别处于不同的防火分区和功能区,因此要求采用防火墙或能达到与防火墙防火性能要求的措施进行分隔,相互间不能相互借用安全出口,且这些楼梯或扶梯要尽量从站本体外接入,以切实保证地铁工程的消防安全(见图3)。

图3 商业开发层与地铁之间防火隔离示意图
非地铁功能场所的防火设计应符合现行国家标准《建筑设计防火规范》GB 50016和《人民防空工程设计防火规范》GB 50098的规定。
4.1.6 本条参照现行国家标准《建筑设计防火规范》GB 50016有关地下总建筑面积大于20000m²的商业场所之间的防火分隔措施,规定了与站厅公共区同层布置的商业等非地铁功能场所的防火分隔要求(见图4、图5)。除本条规定的方式外,也可采用其他等效措施。

图4 站厅公共区与同层商业开发防火隔离示意图

图5 站厅公共区与同层商业开发防火隔离示意图
4.1.7 为了充分利用土地资源,在车辆基地的上方建设非地铁功能的建筑的情况越来越多。为了确保上部建筑的安全,需要将车辆基地和其上部的建筑进行严格的分隔,并确保车辆基地建筑的结构在火灾时能保持较高的耐火性能,要求车辆基地的顶盖和车辆基地内建筑的承重结构的耐火极限至少要达到3.00h,而根据车辆基地内建筑楼板的受力特性,其耐火极限可降低至2.00h。
4.2 地下车站
4.2.1 站台和站厅公共区可划分为同一个防火分区,站厅公共区的建筑面积不宜大于5000m²。
4.2.2 站厅设备管理区应与站厅、站台公共区划分为不同的防火分区,设备管理区每个防火分区的最大允许建筑面积不应大于1500m²。消防水泵房、污水和废水泵房、厕所、盥洗、茶水、清扫等房间的建筑面积可不计入所在防火分区的建筑面积。
4.2.3 地下一层侧式站台与同层站厅公共区可划为同一个防火分区,但站台上任一点至车站直通地面的疏散通道口的最大距离不应大于50m;当大于50m时,应在与同层站厅的邻接面处或站厅的适当位置采用耐火极限不低于2.00h的防火隔墙等进行分隔。
4.2.4 上、下重叠平行站台的车站应符合下列规定:
1 下层站台穿越上层站台至站厅的楼梯或扶梯,应在上层站台的楼梯或扶梯开口部位设置耐火极限不低于2.00h的防火隔墙;
2 上、下层站台之间的联系楼梯或扶梯,除可在下层站台的楼梯或扶梯开口处人员上下通行的部位采用耐火极限不低于3.00h的防火卷帘等进行分隔外,其他部位应设置耐火极限不低于2.00h的防火隔墙。
4.2.5 多线同层站台平行换乘车站的各站台之间应设置耐火极限不低于2.00h的纵向防火隔墙,该防火隔墙应延伸至站台有效长度外不小于10m。
4.2.6 点式换乘车站站台之间的换乘通道和换乘梯,除可在下层站台的通道或楼梯或扶梯口处人员上下通行的部位采用耐火极限不低于3.00h的防火卷帘等进行分隔外,其他部位应设置耐火极限不低于2.00h的防火隔墙。
4.2.7 侧式站台与同层站厅换乘车站,除可在站台连接同层站厅的通道口部位采用耐火极限不低于3.00h的防火卷帘等进行分隔外,其他部位应设置耐火极限不低于3.00h的防火墙。
4.2.8 通道换乘车站的站间换乘通道两侧应设置耐火极限不低于2.00h的防火隔墙,通道内应采用2道耐火极限均不低于3.00h的防火卷帘等进行分隔。
4.2.9 站厅层位于站台层下方时,除可在站厅至站台的楼梯或扶梯开口处人员上下通行的部位采用耐火极限不低于3.00h的防火卷帘等进行分隔外,其他部位应设置耐火极限不低于2.00h的防火隔墙。
4.2.10 在站厅层与站台层之间设置地铁设备层时,站台至站厅的楼梯或扶梯穿越设备层的部位周围应设置无门窗洞口的防火墙。
4.2.11 站台与站厅公共区之间除上下楼梯或扶梯的开口外,不应设置其他上下连通的开口。
条文说明
4.2.1 目前地铁建设从单线进入网络化,多线换乘车站越来越多。除通道换乘外共用一个站厅公共区的建筑面积不断扩大,如两线8A列车编组共用站厅公共区面积将接近5000m²、三线8A列车编组共用站厅公共区面积将接近15000m²,如果将三线8A列车编组的站台公共区面积计入时,车站公共区防火分区的总面积将超过30000m²,这显然大大增加了火灾和烟气蔓延的面积,人员疏散难度更大。因此兼顾换乘车站设计及火灾安全性要求,提出站厅公共区的建筑面积不宜超过5000m²,当站厅公共面积超过5000m²时需要采取防火分隔措施。
三岛六线平行站台的三线换乘形式车站,共用站厅公共区面积大且防火分隔和安全出口设置难度大,在线网规划中应尽量避免采用该换乘形式;至于采用T、L、冂形换乘方式时,共用站厅内防火分隔和安全疏散口设置较易处理,也有条件划分成多个防火分区。
4.2.2 站厅设备管理区与站台、站厅公共区为不同的使用用途,火灾危险性相差较大,故本条要求按不同的防火分区进行划分。站厅设备管理区一般相对集中,设备管理区内还包括车站控制室、站长室、交接班室等。不同地铁线路和不同车站的设备管理区,所需建筑面积有所差异,而在设备管理区设置直通地面的安全出口往往比较困难,加之该区域的使用人员对环境均较熟悉,故参照现行国家标准《建筑设计防火规范》GB 50016有关地下设备房的面积限制要求,规定其每个防火分区的最大允许建筑面积不应大于1500m²。
对于其中的一些不影响区域火灾危险性的面积,本标准参照现行国家标准《人民防空工程设计防火规范》GB 50098的有关规定,允许在计算设备管理区的防火分区建筑面积时,扣除消防水泵房、污水和废水泵房、厕所、盥洗、茶水、清扫等房间的建筑面积以及围护结构和临土侧的外墙所占面积。
4.2.3 地下一层侧式站台公共区通常与站厅公共区位于同一层,当站台公共区最远点至同层站厅公共区出入通道口的走行距离大于50m时,应在与同层站厅公共区的邻接面或在站厅公共区的适当位置用不小于2.00h的防火隔墙进行分隔。该墙上开设不少于2处门洞,门洞与门洞之间的防火分隔墙长度不应小于10m,以防止着火点位于一处门洞时影响其他门洞的人员疏散。同时,门洞处还应设挡烟垂壁,使隔墙两侧形成不同的防烟分区。设备管理区与站台、站厅公共区连接处按照本标准第4.2.2条的要求,划分为不同的防火分区。
4.2.4 本条规定了两种不同形式的车站在连通开口处的分隔要求,即一条地铁线上、下行线为上、下层平行设置的同向侧式站台车站和两条地铁线为上、下层平行设置的岛式站台或侧式站台的换乘车站。
无论哪种形式的车站,当楼梯或扶梯从下层站台穿越上层站台到达站厅层时,在上层站台的楼梯或扶梯周围的开口处全部采用防火隔墙进行分隔。但上、下站台之间的联系楼梯或扶梯,为不影响人员的正常通行,除可以在下层站台的人员上下楼梯或扶梯的开口处设置防火卷帘外,其他部位的开口均应全部采用防火隔墙进行分隔。由于这种分隔属于同一防火分区内的分隔,故防火隔墙的耐火极限按不低于2.00h确定;采用防火卷帘时,考虑到卷帘的实际应用情况,要求防火卷帘的耐火极限不应低于3.00h。
需要注意的是,设置在上、下层站台之间的联系楼梯或扶梯,在火灾时不能相互借用作为安全出口,即设置在楼梯或扶梯开口处的防火卷帘在火灾时应能自行关闭(见图6)。

图6 上、下重叠平行换乘防火隔离示意图
4.2.5 本条规定在多线同层的站台之间设置纵向防火隔墙,并将防火隔墙在站台的有效长度两端分别向外延伸不小于10m,是为了减小A线站台发生的火灾影响B线站台的安全(见图7)。

图7 两线同层站台平行换乘防火隔离示意图
本条规定不适用于一条地铁线采用一岛二侧形式的站台。
4.2.6 点式换乘车站,站台与站台之间的换乘通道和换乘梯在火灾时不能相互作为安全出口。为避免两站台的火灾相互影响,要将两站台之间的连通开口进行防火分隔,除保证人员正常通行的开口外,其他部位均要求采用防火隔墙进行分隔,其分隔要求与本标准第4.2.4条第2款的规定相同(见图8)。

图8 点式换乘车站站台之间防火隔离示意图
4.2.7 对于利用与本地铁线站台同层的另一地铁线的站厅进行换乘的车站(见图9),为使A线站台的火灾不影响到B线站厅公共区乘客的疏散安全,在A线的站台与B线的站厅公共区的连接处应按照两个不同的防火分区的要求进行防火分隔。为便于人员的正常通行,在换乘洞口处可采用火灾时能自行关闭的防火卷帘代替,防火卷帘的耐火极限不应低于3.00h。

图9 侧式站台与同层站厅换乘防火隔离示意图
4.2.8 对于在站厅与站厅之间或站台与站厅之间采用通道进行换乘的车站,由于该通道所连通的空间为不同的防火分区,因此需要在通道的两端开口处分别设置火灾时能自行关闭的防火卷帘进行分隔,并且能分别由两线各自控制其升降和关闭,防火卷帘的耐火极限不应低于3.00h。
4.2.9 站厅层设置在站台层之下的地下车站形式很少见,往往出现在出入口通道为避让地下深埋市政管线的地铁工程中。站厅至站台的楼梯或扶梯,在站厅层的楼扶梯开口周围采用防火隔墙进行防火分隔,在站厅层人员上下楼梯或扶梯的开口处设置防火卷帘(见图10)。该防火卷帘在站厅公共区发生火灾时关闭。

图10 站厅层位于站台下方防火隔离示意图
4.2.10 站厅层与站台层之间设置设备层是常见的车站形式(见图11)。设备层与站厅、站台为不同的防火分区,因此当其他防火分区的楼梯或扶梯穿越设备层时,应该在这些楼梯或扶梯穿越设备层的周围采用防火墙进行分隔。

图11 站厅与站台之间设备层的防火隔离示意图
4.2.11 由于本标准规定人员疏散的基础为从站台公共区疏散至站厅公共区的时间控制在6min内,而从站厅公共区疏散至室外往往还有较长距离,本标准规定最大允许疏散距离为50m。因此,尽管站台公共区域站厅公共区为一个防火分区,但从必需的楼扶梯开口外,要严格控制其他开口,以减小站台层火灾对站台层公共区的危害及对人员疏散安全的影响。
本条规定主要在于限制在地下车站的站厅与站台公共区之间设置中庭等开口。
4.3 地上车站
4.3.1 站厅公共区每个防火分区的最大允许建筑面积不宜大于5000m²。
4.3.2 站厅设备管理区应与站台、站厅公共区划分为不同的防火分区,设备管理区每个防火分区的最大允许建筑面积不应大于2500m²;对于建筑高度大于24m的高架车站,其设备管理区每个防火分区的最大允许建筑面积不应大于1500m²。
4.3.3 站厅位于站台上方且站台层不具备自然排烟条件时,除可在站台至站厅的楼梯或扶梯开口处人员上下通行的部位采用耐火极限不低于3.00h的防火卷帘等进行分隔外,其他部位应设置耐火极限不低于2.00h的防火隔墙。
条文说明
4.3.1 通常情况下,地上车站站厅公共区一般具有良好的自然排烟条件。当建筑面积较大的站厅公共区,则往往需要采用机械排烟方式来满足空间内火灾时的排烟要求,此时的室内条件与地下车站公共区的排烟条件相当。为保持规范自身的协调,本条规定地上车站站厅公共区每个防火分区的最大允许建筑面积也不宜大于5000m²。
4.3.2 本条是参照现行国家标准《建筑设计防火规范》GB 50016有关地上建筑设备区内一个防火分区的最大允许建筑面积的要求确定的。
4.3.3 站厅位于站台上方的高架车站形式很少见,往往出现在高架区间跨横向构筑物的情况下。当站台公共区不具备自然排烟条件时,则在站台与站厅公共区楼扶梯供人员通行部位设防火卷帘,其他部位采用防火隔墙隔离,站厅公共区火灾时关闭防火卷帘,站台上乘客由列车带走。
4.4 控制中心与主变电所
4.4.1 中央控制室应远离电源室、隔离变室、高压配电室等火灾危险性大的房间,中央控制室内不得穿越与指挥调度无关的管线。
4.4.2 设置在应急指挥室与中央控制室之间的观察窗,应采用甲级防火玻璃窗。
4.4.3 控制中心的设备用房宜集中布置,并应采用耐火极限不低于2.00h的防火隔墙和耐火极限不低于1.50h的楼板与其他部位进行分隔。
4.4.4 除直接开向室外的门外,变压器室、补偿装置室、蓄电池室、电缆夹层、配电装置室的门以及配电装置室中间隔墙上的门均应采用甲级防火门。
4.4.5 主变电所的消防控制设备应设置在主变电所有人值守的控制室内。
条文说明
4.4.1 控制中心内的中央控制室是地铁全线(或多条线路)运营、监视、操作、控制、协调、指挥、调度的场所,性质极为重要,必须确保其具有很高的安全性能,不仅要远离火灾危险性大的场所布置,而且要防止与上述功能无关的管线敷设于或穿过中央控制室。
4.4.2 中央控制室与应急指挥室(也称紧急事件指挥室或应急会商室),由于性质重要,但使用时间和作用都不一样,两者间既有联系又要保持相对独立,要确保其使用时的安全,特别是中央控制室。一般情况下,在进入中央控制室前会设置缓冲区,并配备安防设施。当中央控制室与应急指挥室贴邻布置且需要设置观察窗时,需对该开口进行防火保护,故要求采用甲级防火玻璃窗。
4.4.3 运营操作房间和控制中心的设备用房一般集中布置,以缩短各设备房间之间的联系。设备房间的火灾危险性相对较大,为确保各自的消防安全,本标准依据现行国家标准《建筑设计防火规范》GB 50016—2014第6.2.7条确定了各设备房间之间的防火分隔要求。
4.4.4 本条规定的房间为主变电所内各设备室之间相连通的门。
4.4.5 主变电所一般按照近期有人值守、远期按无人值守的原则进行设计,因此主变电所内的消防控制设备应设置在主变电所有人值守的控制室内。
4.5 车辆基地
4.5.1 油漆库及其预处理库宜独立建造,且应符合下列规定:
1 油漆存放间、漆工间、干燥间等房间应采用防火墙和甲级防火门与其他部位分隔;
2 油漆库及其预处理库的屋顶或门、窗的泄压面积应符合要求,应采用不发火花的地面;
3 油漆库及其预处理库内不应设办公室、休息室或更衣室等用房;
4 油漆库及其预处理库中的设备坑内应采取降低气雾浓度的措施;
5 当油漆库与联合检修库合建时,应布置在联合检修库外墙一侧,并应采用无门窗洞口的防火墙与联合检修库分隔。
4.5.2 酸性蓄电池充电间宜独立建造,不应与值班室或其他经常有人的场所相邻布置;当与其他建筑合建时,应靠外墙单层设置,并应采用防火墙与其他部位隔开,当防火墙上必须设置门、窗时,应采用甲级防火门、窗。
4.5.3 运用库内的运转办公区宜单独划分防火分区。
4.5.4 地下停车库、列检库、停车列检库、运用库和联合检修库等场所应单独划分防火分区,每个防火分区的最大允许建筑面积不应大于6000m²;当设置自动灭火系统时,每个防火分区的最大允许建筑面积不限。
4.5.5 地上停车库、列检库、停车列检库、运用库和联合检修库等场所的防火分区划分应符合现行国家标准《建筑设计防火规范》GB 50016的规定。
条文说明
4.5.1 油漆库及其预处理库等属危险等级较高的生产建筑,一旦发生事故,可燃物质足以构成爆炸或燃烧危险,要单独建造。但在车辆基地内,因工艺流程需要或受场地条件限制,此类建筑又多与其他厂房合建,因此要采取严格的防火分隔措施和预防发生爆燃的措施。本条是根据现行国家标准《建筑设计防火规范》GB 50016制定的。
4.5.2 酸性蓄电池一般为铅酸电池,在电池内充有硫酸,在充电过程中,特别是在充电末期会产生一定数量的氢气和氧气。因此为预防发生爆炸和减小其爆炸危害,除要加强通风、采取必要的防爆措施和设置必要的泄压面积外,还要尽量独立设置在相对安全或对其他建筑影响较小的位置,要避开经常有人停留或经过的场所,与其他建筑合建时,应符合现行国家标准《建筑设计防火规范》GB 50016的规定。
4.5.3 运用库内的运转办公区是工作人员相对集中的办公场所。为保证工作人员的安全,要尽量将运转办公区与停车区分开,并各自独立划分防火分区。
4.5.4 目前国内车辆基地设于地下的实践较少。考虑到地铁地下列车停车库比地下汽车库的火灾危险性小,故做出本条规定。
5 安全疏散
5.1 一般规定
5.1.1 站台至站厅或其他安全区域的疏散楼梯、自动扶梯和疏散通道的通过能力,应保证在远期或客流控制期中超高峰小时最大客流量时,一列进站列车所载乘客及站台上的候车乘客能在4min内全部撤离站台,并应能在6min内全部疏散至站厅公共区或其他安全区域。
5.1.2 乘客全部撤离站台的时间应满足下式要求:

式中:Q1——远期或客流控制期中超高峰小时最大客流量时一列进站列车的载客人数(人);
Q2——远期或客流控制期中超高峰小时站台上的最大候车乘客人数(人);
A1——一台自动扶梯的通过能力[人/(min·台)];
A2——单位宽度疏散楼梯的通过能力[人/(min·m)];
N——用作疏散的自动扶梯的数量(台);
B——疏散楼梯的总宽度(m)(每组楼梯的宽度应按0.55m的整倍数计算)。
5.1.3 在公共区付费区与非付费区之间的栅栏上应设置平开疏散门。自动检票机和疏散门的通过能力应满足下式要求:

式中:A3——自动检票机门常开时的通过能力(人/min);
A4——单位宽度疏散门的通过能力[人/(min·m)];
L——疏散门的净宽度(m)(按0.55m的整倍数计算)。
5.1.4 每个站厅公共区应至少设置2个直通室外的安全出口。安全出口应分散布置,且相邻两个安全出口之间的最小水平距离不应小于20m。换乘车站共用一个站厅公共区时,站厅公共区的安全出口应按每条线不少于2个设置。
5.1.5 每个站台至站厅公共区的楼扶梯分组数量不宜少于列车编组数的1/3,且不得少于2个。
5.1.6 电梯、竖井爬梯、消防专用通道以及管理区的楼梯不得用作乘客的安全疏散设施。
5.1.7 站台设备管理区可利用站台公共区进行疏散,但有人值守的设备管理区应至少设置一个直通室外的安全出口。
5.1.8 站台的两端部均应设置从区间疏散至站台的楼梯。当站台设置站台门时,站台门的端门应向站台公共区方向开启。
5.1.9 站台每侧站台门上的应急门数量宜按列车编组数确定。当应急门设置在站台计算长度内的设备管理区和楼梯、扶梯段内时,应核算侧站台在应急门开启时的通过能力。
5.1.10 站厅公共区和站台计算长度内任一点到疏散通道口和疏散楼梯口或用于疏散的自动扶梯口的最大疏散距离不应大于50m。
5.1.11 站厅公共区与商业等非地铁功能的场所的安全出口应各自独立设置。两者的连通口和上、下联系楼梯或扶梯不得作为相互间的安全出口。
5.1.12 当站台至站厅和站厅至地面的上、下行方式采用自动扶梯时,应增设步行楼梯。
5.1.13 乘客出入口通道的疏散路线应各自独立,不得重叠或设置门槛、有碍疏散的物体及袋形走道。两个或以上汇入同一条疏散通道的出入口,应视为一个安全出口。
条文说明
5.1.1 本条为强制性条文。一般情况下,远期超高峰小时最大客流量大于初、近期超高峰小时客流量,但当线网未形成前,已通车的线路往往近期超高峰小时最大客流量会大于本线远期超高峰小时客流量。因此提出按远期或客流控制期中超高峰小时最大断面客流量计算一列车进站所载乘客量。
站厅公共区内的可燃物极少,且封闭的地下车站均设置事故通风和排烟系统,当站台层或区间隧道发生火灾时,站厅公共区在一定时间内能为站台层上的人员疏散提供较高的安全保障。当站台层直接连接室外开敞空间时,该空间自然成为安全区。
本条参照《固定导轨运输和有轨客运系统标准》NFPA 130—2014,按站台层上的乘客能在4min内全部撤离站台来配置站台至站厅公共区或出地面的楼扶梯组数和总输送能力;同时要求6min内所有乘客能全部疏散至站厅公共区或其他安全区域,来匹配站台上疏散楼梯、扶梯的设置位置、数量和宽度与自站台到达站厅或其他安全区的高度或长度等之间的关系。根据本标准第1.0.3条的规定,站台层上的疏散总人数为一列进站列车所载乘客与站台上的全部候车人数。
5.1.2 公式(5.1.2)是计算配置站台与站厅公共区或其他安全区域之间楼扶梯组数和总输送能力的公式,其中N为用作疏散的自动扶梯数量(台),在火灾工况时逆向运转的自动扶梯不能计入疏散用。
5.1.3 本条规定旨在当站台发生火灾时,站厅付费区能接纳从站台上疏散来的人员不会滞留在付费区内。要求在非付费区与付费区之间设置的栏栅上开设一定数量的栏栅门,并配合进、出站自动检票机闸在火灾时全面打开,则可使人员能够从付费区快速疏散到非付费区并通往安全地点。
5.1.4 本条为强制性条文。每个站厅公共区应设置不少于2处直通室外的安全出口,包括当一座车站采用了分离式站厅时,每个分离式站厅仍应满足不少于2个安全出口。
换乘车站共用一个站厅公共区时,其安全出口按每条线不应少于2个。如两条线换乘站不应少于4个,三条线换乘站不应少于6个。满足站厅公共区任一点至最近通道口的走行距离不超过50m。
5.1.5 目前,国内车站站台至站厅公共区楼梯或扶梯的设置情形为:6节编组车站,通常设置不少于2组;8节编组车站,通常设置不少于3组。楼梯或扶梯设置组数的多少,对于火灾时的人员疏散至关重要。
5.1.6 电梯即无障碍电梯,正常运营工况下供老、弱、病、残、孕等乘客使用。火灾工况时,不作为乘客疏散用。设于管道井、风井内的爬梯为检修人员用。设于车站设备管理防火区内的消防专用通道及供管理人员上、下用的楼梯均布置在非公共区。故以上设施均不能作为乘客疏散用。
5.1.7 站台设备管理区可利用设备管理区的外走道,通过端门向站台公共区进行疏散。但有人值守的设备管理区,为方便人员进出和逃生,则应布置在消防专用通道一侧,并利用进入该专用通道的门作为其直达室外的安全出口。
5.1.8 设于站台两端与区间相连接的楼梯,是用于被迫停靠在区间内的故障列车上的人员通过该楼梯经端门到达站台并向地面疏散。同时,该楼梯也是管理人员通向区间进行维修、保养和救援人员进入区间开展救援的通道。
5.1.9 站台门上的应急门用于滑动门故障时可以让列车上的人员进入站台。由于应急门是呈90°向站台内侧开启,故设置在楼梯、扶梯段及伸入站台计算长度内的设备用房区段的应急门,要核算在应急门开启后的侧站台宽度的通过能力是否满足设计疏散要求。一般情况下,应急门的设置位置要能避开上述区段。
5.1.10 本条沿用现行国家标准《地铁设计规范》GB 50157—2013第28.2.7条。站台计算长度(站台门所围长度)内任一点至通道口(地下一层和高架侧式站台)或楼梯、扶梯口(岛式站台)的距离不应大于50m,以满足不超过6min站台乘客疏散到站厅安全区要求。站厅公共区任一点至最近出入通道口走行距离不大于50m,由于站厅公共区的付费区与非付费区之间设有曲折多变的栏栅,故应以走行距离来计。
5.1.11 本条为强制性条文。车站与商业等非地铁功能场所合建时,尽管与商业开发合用的出入口在正常情况下可以共用,但由于这些共用的出入口处需要采取防火分隔措施,因此在地铁或非地铁功能部分发生火灾时,这些共用的出入口并不能作为相互间的安全出口,车站和非地铁功能场所的疏散设施需各自相互独立并完全满足各自的要求(见图12)。

图12 站厅公共区与商业开发出入口布置示意图
5.1.12 尽管本标准允许向疏散方向运行的自动扶梯可以用于疏散,但自动扶梯的疏散能力和可靠性仍不如步行楼梯。此外,还需考虑一旦自动扶梯停运时,人员还可方便上下。一般情况下,步行楼梯的宽度沿用现行国家标准《地铁设计规范》GB 50157—2013单向1.8m、双向2.4m的要求。
5.1.13 每个站厅出入口在满足站厅公共区任一点至最近出入通道口的走行距离不应超过50m的前提下,出入通道口与站厅非付费区相连接计为出入口。当一个出入通道口设两个或两个以上的分支出入口时仍计为一个出入口,或连接两个非付费区开出的通道合为一个至地面的出入口时只能计作一个出入口;当出入通道内设有不足三级踏步或门槛时,应设计为坡道,在出入口通道内不应设置有碍疏散的障碍物,且不能使通道设计为迂回,否则会影响疏散能力。
5.2 地下车站
5.2.1 有人值守的设备管理区内每个防火分区安全出口的数量不应少于2个,并应至少有1个安全出口直通地面。当值守人员小于或等于3人时,设备管理区可利用与相邻防火分区相通的防火门或能通向站厅公共区的出口作为安全出口。
5.2.2 地下一层侧式站台车站,每侧站台应至少设置2个直通地面或其他室外空间的安全出口。与站厅公共区同层布置的站台应符合下列规定:
1 当站台与站厅公共区之间设置防火隔墙时,应在该防火隔墙上设置至少2个门洞,相邻两门洞之间的最小水平距离不应小于10m;
2 当站台与站厅公共区之间未设置防火隔墙时,站台上任一点至地面或其他室外空间的疏散时间不应大于6min。
5.2.3 侧式站台利用站台之间的过轨地道作为安全疏散通道时,应在上、下行轨道之间设置耐火极限不低于2.00h的防火隔墙。
5.2.4 站台端部通向区间的楼梯不得用作站台区乘客的安全疏散设施。换乘车站的换乘通道、换乘梯不得用作乘客的安全疏散设施。
5.2.5 有人值守的设备管理用房的疏散门至最近安全出口的距离,当疏散门位于2个安全出口之间时,不应大于40m;当疏散门位于袋形走道两侧或尽端时,不应大于22m。
5.2.6 出入口通道的长度不宜大于100m;当大于100m时,应增设安全出口,且该通道内任一点至最近安全出口的疏散距离不应大于50m。
5.2.7 设备层的安全出口应独立设置。
5.2.8 地下车站应设置消防专用通道。当地下车站超过3层(含3层)时,消防专用通道应设置为防烟楼梯间。
条文说明
5.2.1 本条参照现行国家标准《人民防空工程设计防火规范》GB 50098—2009第5.1.1条第4款的规定,将经常停留人数不大于3人的区域,允许设置一个通向其他室内安全区域的安全出口。
5.2.2 当地下一层的侧式站台连通同层标高地下一层的站厅公共区时,要求在连通的临界面处设置的防火隔墙上设置2个或2个以上的疏散门洞。该门口可以视为站台至站厅的通道口,门洞口处需设置挡烟垂壁,阻延烟气的蔓延(见图13)。

图13 地下一层侧式站台安全出口布置示意图
5.2.3 地下侧式站台之间的过轨地道,是为乘客进入付费区后调节乘运方向错误而设,不能作为火灾时的安全出口。当上、下行轨道之间的上方设置了挡烟垂壁时,可作为安全出口,但考虑到列车在车站轨道区发生火灾时不能影响到非着火轨道区,要将挡烟垂壁改为防火隔墙。这样,在站台层发生火灾时,过轨地道作为安全出口的安全性更高。防火隔墙的设置长度见本标准第4.2.5条。
5.2.4 站台端部通向区间的楼梯是供工作人员使用的楼梯,也是乘客从地下区间向站台疏散的唯一楼梯。
换乘车站的换乘通道、换乘梯,包括站台与站台点式相交换乘、站厅与站厅之间的换乘以及站台与另一条线的站厅之间的换乘通道或楼梯。由于换乘通道、换乘梯在火灾时会被关闭,故不能作为乘客在火灾时的安全出口。
5.2.5 本条规定是参照现行国家标准《建筑设计防火规范》GB 50016确定的。
5.2.6 本条规定了地下车站出入口通道的长度。当该通道长度大于100m时,应在中部增设疏散出口,其设置位置应满足人的走行距离不大于50m;出入口通道的长度按通道口到地面出入口的暗埋段的长度计算。
5.2.7 当站台层的楼梯或扶梯穿越设备层到达站厅层时,在设备层被穿越的空间需采用耐火极限不低于3.00h的防火墙进行分隔,不允许在墙上开设门洞、利用穿越楼梯的中间平台作为设备层的安全出口,以防止公共区或设备层发生火灾时相互产生不利影响,但可以考虑设置楼梯间通往站厅公共区的付费区(见图14)。

图14 设备层安全出口布置示意图
5.2.8 消防专用通道(楼梯间)主要为消防人员迅速进入地下车站各层和地下区间进行灭火救援的专用通道(楼梯间),且多设置在通往有人值守设备区的位置。此外,根据地铁车站管理要求,地铁车站的工作人员在火灾时应驻守岗位,而地铁车站内的疏散人数多,疏散方向单一,并与救援人员进入线路交叉。为尽量减小疏散人员与救援人员间的不利影响,使救援人员能够尽快安全进入火场,本条参照现行国家标准《建筑设计防火规范》GB 50016的要求,规定了要求车站设置消防专用通道(楼梯间)的范围。
5.3 地上车站
5.3.1 站厅通向天桥的出口可作为安全出口,且应符合下列规定:
1 应采用不燃材料制作,内部装修材料的燃烧性能应为A级;
2 应具有良好的自然排烟条件;
3 不得用于人行外的其他用途;
4 应能直接通至地面。
5.3.2 换乘车站的换乘通道和换乘梯应采用不燃材料制作,其装修材料的燃烧性能应为A级;当换乘通道和换乘梯具有良好的自然排烟条件时,换乘车站通向该换乘通道或换乘梯的出口可作为安全出口。
5.3.3 地面侧式站台车站的过轨地道可作为疏散通道,上跨轨道的通道不得作为疏散通道。
5.3.4 设备管理区内房间的疏散门至最近安全出口的疏散距离应符合现行国家标准《建筑设计防火规范》GB 50016的规定。
5.3.5 与区间纵向疏散平台相连通的站台的安全出口,可利用站台门上能双向开启的端门。
5.3.6 建筑高度超过24m且相连区间未设纵向疏散平台的高架车站,应在站台增设直达地面的疏散楼梯。
条文说明
5.3.1 本条规定了高架车站利用车站通向天桥的出口作为安全出口时,天桥应具备的条件。
5.3.2 本条规定了地上车站与地上车站之间、地下车站向地上车站之间的换乘通道和换乘梯作为安全出口的条件,地上车站向地下车站的换乘通道和换乘梯不能作为安全出口。
5.3.3 地面车站的站台雨篷通常采用敞开式或满足自然通风与排烟条件的半敞开式。过轨地道可作为火灾时的疏散通道,但上跨轨道的通道不论雨篷是敞开式还是半敞开式,均可能受到火灾烟气的危害,不能作为疏散通道。当站台雨篷的形式不能满足自然通风与排烟的条件时,过轨地道也不得作为疏散通道。
5.3.5 地上区间是开敞的室外区间,因此站台通向区间纵向疏散的出口可以作为安全出口。由于站台必须设置站台门,因此从区间疏散到站台的端门要能够双向开启。
5.3.6 建筑高度大于24m的高架车站属于高层建筑,目前国内极少采用。对于这样的车站,其安全疏散应根据现行国家标准《建筑设计防火规范》GB 50016的规定设置两个或多个不同方向的疏散路径。因此本条要求车站不能通过相连的区间进行疏散时,在站台两端需增设直达地面层的疏散楼梯。
5.4 区间
5.4.1 载客运营轨道区的道床面应平整、连续、无障碍物,并应满足人员疏散行走的要求。
5.4.2 两条单线载客运营地下区间之间应设置联络通道,相邻两条联络通道之间的最小水平距离不应大于600m,通道内应设置一道并列二樘且反向开启的甲级防火门。
5.4.3 载客运营地下区间内应设置纵向疏散平台。
5.4.4 单洞双线载客运营地下区间的线路间宜设置耐火极限不低于3.00h的防火墙;不设置防火墙且不能敷设排烟道(管)时,在地下区间内应每隔800m设置一个直通地面的疏散井,井内的楼梯间应采用防烟楼梯间。
5.4.5 当地下区间利用区间风井进行疏散时,风井内应设置直达地面的防烟楼梯间。
5.4.6 列车客室门应设置手动紧急解锁装置;需行驶于地下区间的列车的车头和车尾节应设置疏散门,各节车厢之间应贯通。
5.4.7 区间两端采用侧式站台车站的载客运营地上区间,应设置纵向疏散平台;区间两端采用岛式站台车站的地上载客运营区间,应在上、下行线路之间设置纵向疏散平台,并应符合下列规定:
1 对于上、下行线合一的载客运营地上区间,当列车车头、车尾节设置疏散门,且各节车厢相互贯通或车辆侧门设置乘客下到道床面的设施时,可不设置纵向疏散平台。
2 对于上、下行线分开的单向载客运营地上区间,当列车车头、车尾节设置疏散门,且各节车厢相互贯通时,可不设置纵向疏散平台。
条文说明
5.4.1 地上、地下载客运营区间,轨道区道床面是疏散通道,需要保持其平整、连续、无障碍物,不影响人员疏散。设置中间排水沟的道床面要采取加盖板等防护措施;对于突出道床面的构筑物、设施和配线区,要采用坡道相接。
5.4.2 本条为强制性条文。当列车在地下区间发生火灾,又不能牵引到相邻车站时,乘客要利用列车端门下至道床面,并开启部分列车侧门下到纵向疏散平台进行疏散。在疏散时,可利用相邻区间之间的联络通道,将乘客分流到另一条非着火区间内疏散到邻近车站。这有利于加快疏散速度,提高火灾中人员的安全性。同时,联络通道的设置也为救援人员通过非着火区间经联络通道到达火灾区间进行灭火救援提供条件。对于非载客运营区间(比如两条出入线之间),则不需要设置联络通道。对于二线叠合的换乘车站,区间之间的联络通道要设置在同一条线路的上、下行区间内(见图15)。

图15 地下区间联络通道布置示意图
5.4.3 本条为强制性条文。地下区间内设置纵向疏散平台,可以为乘客多提供一条疏散路径,使人员能够尽快离开着火区域。例如,当列车中间节发生火灾时,根据通风排烟方向,可以利用列车端门疏散到道床面进行疏散,但后几节车厢乘客则无法穿越中间着火的车厢到达列车端门进行疏散。当列车车头、车尾节无法设置疏散门时,需要依靠打开侧门并通过纵向疏散平台迎风进行疏散(见图16)。

图16 地下区间纵向疏散平台布置示意图
5.4.4 本条规定参照了美国标准《Standard for Fixed Guideway Transit and Passenger Rail Systems》NFPA 130的规定(见图17)。

图17 单洞双线示意图
5.4.5 区间风井是一个比较安全的区域,当两列车同时存在同一段地下区间内,并需要设置中间风井时,在井内设置疏散楼梯直到地面,不仅有利于人员疏散,而且有利于灭火救援。由于此楼梯间需用作上、下行线区间的疏散,故应设计成防烟楼梯间。
5.4.6 只要用于地下或部分地下区间运营的列车,在列车头、尾节都需要设置疏散门,并具备在各节车厢之间贯通的条件,以实现列车发生火灾无法牵引到邻近车站时供乘客疏散。
5.4.7 对于地上区间,当车辆侧门设置了可下到道床面的设施时,乘客能从列车的多处下到非着火区间的道床面进行疏散,当列车车头、尾设置疏散门,且每节车厢之间贯通时,不论列车哪一节发生火灾,均可利用列车车头、尾节的疏散门下到道床面,脱离火灾列车向两端车站疏散,可不设置纵向疏散平台。除上述情况外,应设纵向疏散平台。
5.5 控制中心、主变电所与车辆基地
5.5.1 中央控制室的安全出口不应少于2个,室内的设备布置应方便人员安全疏散。
5.5.2 建筑面积大于250㎡的控制室和配电装置室、补偿装置室、电缆夹层应至少设置2个安全出口,并宜布置在设备室的两端。建筑长度大于60m的配电装置室,应在其中间适当部位增设1个安全出口。
5.5.3 地下停车库、列检库、停车列检库、运用库和联合检修库等场所内每个防火分区的安全出口不应少于2个,并应符合下列规定:
1 当室内外高差不大于10m,平面上有2个或2个以上的防火分区相邻布置时,每个防火分区可利用一个设置在防火墙上并通向相邻防火分区的甲级防火门作为第二个安全出口,但必须至少设置1个直通室外的安全出口。
2 采光竖井或进风竖井内设置直通地面的疏散楼梯,且通向竖井处设置常闭甲级防火门的防火分区,可设置另一个通向室外或避难走道的安全出口。
5.5.4 地下停车库、列检库、停车列检库、运用库和联合检修库的室内最远一点至最近安全出口的疏散距离不应大于45m;当设置自动灭火系统时,不应大于60m。
5.5.5 车辆基地和其建筑上部其他功能场所的人员安全出口应分别独立设置,且不得相互借用。
条文说明
5.5.1、5.5.2 控制中心的中央控制室是一个独立的防火分区。主变电所各房间的火灾危险性较高,相互进行了较严格的防火分隔。根据现行国家标准《建筑设计防火规范》GB 50016确定了其安全出口设置的基本要求。
5.5.3 本条规定了车辆基地内各大库每个防火分区的安全出口设置要求。当车辆基地设置在地下时,车辆基地内的建筑要按本标准第4.5.4条的规定划分防火分区,并布置相应的安全出口。
5.5.4 由于上述库房列车停车位下面设有检修坑,且常有众多列车停放,当不能满足疏散距离时,可采取检修坑之间联通,把出入口置于库房外与消防车道相邻,视为达到安全区。
5.5.5 本条为强制性条文。车辆基地与上盖商业等非地铁用场所的功能、使用性质不同,要求分别独立设置人员的安全出口和车辆的疏散出口。本条是依据现行国家标准《建筑设计防火规范》GB 50016—2014第1.0.4条规定的,一方面是为了保证各自的安全疏散需要,另一方面考虑车辆基地属于重要交通设施基地,实行全封闭管理,避免无关人员进入,保证车辆基地安全。
5.6 疏散指示标志
5.6.1 站台和站厅公共区、人行楼梯及其转角处、自动扶梯、疏散通道及其转角处、防烟楼梯间、消防专用通道、安全出口、避难走道、设备管理区内的走道和变电所的疏散通道等,均应设置电光源型疏散指示标志。
5.6.2 站台和站厅公共区内的疏散指示标志应设置在柱面或墙面上,标志的上边缘距地面不应大于1m、间距不应大于20m且不应大于两跨柱间距;在这些标志相对应位置的吊顶下宜增设疏散指示标志,其下边缘距地面不应小于2.2m,上边缘距吊顶面不应小于0.5m。
5.6.3 安全出口和疏散通道出口处的疏散指示标志应设置在门洞边缘或门洞的上部,标志的上边缘距吊顶面不应小于0.5m,下边缘距地面不应小于2m。
5.6.4 疏散通道两侧及转角处的疏散指示标志应设置在墙面上,标志的上边缘距地面不应大于1m、间距不应大于10m,通道转角处的标志间距不应大于1m;在这些标志相对应位置的吊顶下宜增设疏散指示标志,其下边缘距地面不应小于2.2m。设备管理区疏散走道内的疏散指示标志间距不应大于10m。
5.6.5 自动扶梯起点侧面及人行楼梯起步的3阶踏步立面处,宜增设蓄光型疏散指示标志。
5.6.6 地下区间纵向疏散平台上应设置疏散指示标志和与疏散出口的距离标识。疏散指示标志和疏散出口的距离标识应设置在疏散平台的侧墙上,不应侵占疏散平台宽度,间距不宜大于15m。
5.6.7 地下区间之间的联络通道的洞口上部,应垂直于门洞设置具有双面标识常亮的疏散指示标志。
5.6.8 疏散指示标志应设置在不被遮挡的醒目位置,不应设置在可开启的门、窗和其他可移动的物体上。疏散指示标志的图形及其文字的尺寸应与空间大小及标志的设置间距匹配。
条文说明
5.6.1 本条规定了地铁工程中应设置疏散指示标志的部位及其基本类型。由于地铁工程绝大部分属于地下建筑,同时也是人员密集的场所,因此要求采用电光型疏散指示标志,确保在火灾时有效发挥作用。
5.6.2~5.6.4 这三条规定了电光源型疏散指示标志的基本设置位置。但是考虑到人员在地铁车站内疏散时比较拥挤,低位设置的疏散指示标志只能指示前面的疏散人员,难以指示后方的人员,即使目前一些城市在地铁车站增设地面疏散标志,但仍存在一些不足,在实际地铁工程中,还要尽量在这些疏散指示标志相对应位置的吊顶下增设指示标志,并且要注意使疏散指示标志的设置高度处于储烟仓以下,避免被烟雾遮挡。
5.6.5 为更好地引导人员疏散,提高疏散效率,防止人员在台阶处发生意外,本条要求在自动扶梯疏散方向的起点侧面和人行楼梯起步的三阶踏步立面处,增设蓄光型疏散指示标志。但是蓄光型指示标志对环境光源有一定的要求,如果环境光源不合适,则设置这种标志后的作用不大。在这种情况下,可采取其他措施来增强人员疏散的安全性,如提高疏散照明的照度等。
5.6.6 设置在地下区间纵向疏散平台上方的疏散指示标志,其设置间距和高度要合适,要能使每节车厢内的乘客均能看到,间距不宜过大。此外,火灾时区间内的环境比较恶劣,区间往往又比较长,联络通道的间距也不短,人员在区间内逃生时心情紧张,缺乏安全感,因此要在疏散指示标志上标示出当前位置与前方联络通道或安全出口的距离,以提高人员的疏散效率。
5.6.7 在每个联络通道的洞口上部垂直于洞口处设置两面均有标识且常亮的指示标志,有利于乘客在火灾时从着火区间向非着火区间疏散。
6 建筑构造
6.1 防火分隔设施
6.2 自动扶梯、楼梯间、管道井与纵向疏散平台
6.3 建筑内部装修
6.1 防火分隔设施
6.1.1 在所有管线(道)穿越防火墙、防火隔墙、楼板、电缆通道和管沟隔墙处,均应采用防火封堵材料紧密填实。在难燃或可燃材质的管线(道)穿越防火墙、防火隔墙、楼板处,应在墙体或楼板两侧的管线(道)上采取防火封堵措施。在管道穿越防火墙、防火隔墙、楼板处两侧各1.0m范围内的管道保温材料应采用不燃材料。
6.1.2 电缆至建筑物的入口或配电间和控制室的沟道入口处、电缆引至电气柜(盘)或控制屏的开孔部位,应采取防火封堵措施。
6.1.3 防火墙上、防烟楼梯间和避难走道的前室入口处、联络通道处的门均应采用甲级防火门,防火隔墙上的门、管道井的检查门及其他部位的疏散门均应采用乙级防火门。
6.1.4 疏散门及消防专用出入口、联络通道和区间风井处的防火门,应保证火灾时不需使用钥匙等工具即能向疏散方向开启,并应在显著位置设置标识和使用提示。
6.1.5 设置在建筑变形缝附近的防火门,门扇启闭时不应骑跨变形缝。
6.1.6 在过往列车及隧道通风的正、负压力作用下,区间风井内防烟楼梯间前室和联络通道处的防火门不应自动开启。
6.1.7 防火墙上的窗口应采用固定式甲级防火窗。
6.1.8 防火隔墙上的窗口应采用固定式乙级防火窗,必须设置活动式防火窗时,应具备火灾时能自动关闭的功能。
6.1.9 乘客的疏散通道上不应设置防火卷帘。
条文说明
6.1.1 为防止房间发生火灾后的烟气不会蔓延到相邻房间和其他区域,要求对管线(道)等穿越防火墙、防火隔墙、耐火楼板等防火分隔部位处的缝隙采取防火封堵措施。
6.1.2 本条规定主要为防止外部火灾通过电缆在穿越或引入建筑的开口部位进入建筑内。
6.1.3 本条规定主要为确保各防火分隔区域在火灾时能可靠和有效发挥作用。不同防火分隔要求的部位,其门洞的防火要求有所区别,但这些要求都是最低要求,鼓励在相应部位采用更高耐火性能的防火门。
6.1.4 本条规定主要为确保火灾时人员疏散和救援人员进出不受限制,特别是平时不经常使用和开启的门,往往容易被忽视而被锁住,导致人员在紧急情况下无法利用。
6.1.5 本条规定主要为确保防火门在火灾时能正常关闭,不会因建筑变形而难以启闭。
6.1.6 列车在区间内行驶时会产生较大的活塞风,隧道通风系统开启时的风速也较大,往往会在区间不同位置产生较大的正压或负压,从而使设置在联络通道处的门经常处于循环启闭状态。从过去的地铁运行情况看,这种作用容易使门受到破坏而不能在应急时发挥相应的防火防烟作用。因此本条要求设置在地下区间之间的联络通道内的防火门以及设置在区间风井内防烟楼梯间前室的防火门,要采取措施使门在上述风压作用下不会被打开。
6.1.9 在乘客疏散通道上设置感烟探测器一级下降或设置感烟感温探测器二级下降的防火卷帘,火灾时均不能实现大客流连续疏散的功能,而一旦防火卷帘下降后将会对未及疏散的人员造成很大危险。因此在供乘客疏散通道上不应设置防火卷帘。
6.2 自动扶梯、楼梯间、管道井与纵向疏散平台
6.2.1 火灾时兼作疏散用的自动扶梯应符合下列规定:
1 应按一级负荷供电;
2 应采用不燃材料制造;
3 应能在事故时保持运行;
4 平时运行方向应与人员的疏散方向一致;
5 自动扶梯的下部空间与其他部位之间应采取防火分隔措施;
6 暴露在室外环境的自动扶梯应采取防滑措施;位于寒冷或严寒地区时,应采取防冰雪积聚和防冻的措施。
6.2.2 封闭楼梯间和防烟楼梯间的防火构造要求应符合现行国家标准《建筑设计防火规范》GB 50016的规定。
6.2.3 电缆井、管道井应分别独立设置。电缆井、管道井的井壁均应采用耐火极限不低于1.00h的不燃性实体墙。
6.2.4 区间纵向疏散平台应符合下列规定:
1 单侧临空时,平台的宽度不宜小于0.6m;双侧临空时,平台的宽度不宜小于0.9m。
2 平台的设置高度宜低于车辆地板面0.10m~0.15m。
3 靠区间壁的墙上应设置靠墙扶手,高度宜为0.9m。
4 纵向疏散平台面标高与联络通道地坪标高宜接平。
5 疏散平台的耐火极限不应低于1.00h。
条文说明
6.2.1 为方便乘客,在地铁车站内的上、下行方向均设置自动扶梯的情况比较普遍。在火灾时,地铁车站内的人员疏散方向比较单一,均是从站台向站厅或室外安全地点、站厅至室外安全地点进行疏散。地铁车站的自动扶梯与疏散楼梯是成组布置,在火灾时,其出入口部均不会被封闭,因此可以利用这些自动扶梯来提高车站的疏散能力。但自动扶梯毕竟要依靠电力和机械传动来保证其运行,因此将自动扶梯用于疏散时需要满足一定的要求,以确保人员疏散的安全。
除应按一级负荷供电外,要求自动扶梯采用不燃材料制造,这包括扶梯的桁架、踏板、护壁板等,但扶手带可采用橡胶带。逆向运转的自动扶梯在6min内无法转为顺应人员疏散方向运转。为了保护自动扶梯内部的设备,防止火灾危害,本条要求在自动扶梯下部空间采用防火隔墙与其他部位分隔,防火隔墙的耐火性能依其设置位置而定,详见本标准相关要求。
6.2.2 封闭楼梯间和防烟楼梯间的构造要求参见现行国家标准《建筑设计防火规范》GB 50016。
6.2.4 本条规定了在区间内设置的纵向疏散平台的基本要求。
1 考虑到区间加设纵向疏散平台后,会增加地下部分的工程量,对于某些施工方法的区间有时会增加不小难度,本条规定了疏散平台的最小宽度,有条件的,要尽量加宽,以加快人员的疏散速度,提高疏散过程中人员的安全性。
2 平台面标高要低于列车的地板面,使得人员从列车下到疏散平台时不会发生意外。当联络通道低于纵向疏散平台时,平台纵向要采用坡道与联络通道相接,使平台上的乘客疏散连续,不会被绊倒。
对地下区间,平台下方一般会敷设强电电缆,因此联络通道的地坪标高要尽量与疏散平台面的标高一致。这样有利于乘客在纵向疏散平台上通过联络通道疏散到非着火区间,也有利于强电电缆的贯通,不必再将强电电缆绕到平台上方而侵占平台宽度。
6.3 建筑内部装修
6.3.1 地上车站公共区的墙面和顶棚装修材料的燃烧性能均应为A级,满足自然排烟条件的车站公共区,其地面装修材料的燃烧性能不应低于B1级。
6.3.2 休息室、更衣室、卫生间等场所,其顶棚装修材料的燃烧性能均应为A级,墙面、地面装修材料的燃烧性能均不应低于B1级。除架空地板的燃烧性能可为B1级外,设备管理区用房的顶棚、墙面、地面装修材料的燃烧性能均应为A级。
6.3.3 中央控制室、应急指挥室、控制中心的顶棚和墙面装修材料的燃烧性能均应为A级,地面、隔断、调度台椅、窗帘及其他装饰材料的燃烧性能均不应低于B1级。
6.3.4 除地面绝缘材料外,主变电所室内装修材料的燃烧性能应为A级。
6.3.5 除不燃性墙面和地面的饰面涂层外,停车库、列检库、停车列检库、运用库和联合检修库、物资库等建筑内部装修材料的燃烧性能均应为A级。
6.3.6 站厅、站台、人员出入口、疏散楼梯及楼梯间、疏散通道、避难走道、联络通道等人员疏散部位和消防专用通道,其墙面、地面、顶棚及隔断装修材料的燃烧性能均应为A级,但站台门的绝缘层和地上具有自然排烟条件的房间地面装修材料的燃烧性能可为B1级。
6.3.7 疏散通道和疏散楼梯的地面材料应具有防滑特性。
6.3.8 广告灯箱、导向标志、座椅、电话亭、售检票亭(机)等固定设施的燃烧性能均不应低于B1级,垃圾箱的燃烧性能应为A级。
6.3.9 车站内使用的玻璃应采用安全玻璃。在设备管理区设置的玻璃门、窗,其耐火性能不应低于该防火分隔部位的耐火性能要求。
6.3.10 室内装修材料不得采用石棉制品、玻璃纤维和塑料类制品。
条文说明
6.3.1 本条规定了地上车站公共区、设备管理用房装修材料的燃烧性能。
6.3.2 本条规定了车站设备管理用房内部装修材料的燃烧性能。车站控制室、通信、信号房的地面上敷设有众多弱电电缆且无人值守房间内设置了自动灭火系统保护,且需采用架空地板,故允许架空地板的燃烧性能可为B1级。
6.3.3 控制中心是地铁的指挥、运营中心,特别是中央控制室、应急指挥室,极为重要,一般设置在地上。因此,本条要求控制中心的顶棚、墙面装修均采用不燃性材料,而其他部位的装修材料考虑到实际情况和工作环境要求,允许采用难燃性材料。
6.3.4 主变电所是从城市电网引入高压电源,降压为地铁工程提供电源的专用高压变电所,对地铁线安全运行极为重要。由于大部分主变电所采用油浸式变压器,对防火和消防设施要求较高,因此除地面绝缘材料外,房间内的墙面、顶棚均要求采用不燃性装修材料。
6.3.5 车辆基地内的建筑,有的建筑面积较小,但火灾危险性较高,如变配电室、材料仓库等;有的火灾危险性较低,但建筑面积巨大,如停车库、运用库等。为尽量减小因装修材料所带来的火灾危险,本条规定地上、地下车辆基地各建筑的内部装修均要求采用不燃性材料,但考虑到墙面和地面的饰面要求且饰面涂层薄,不严格要求其燃烧性能。
6.3.6 地铁车站属于公众聚集场所,特别是地下车站,火灾时排烟、人员疏散和灭火救援的难度都很大,要严格控制和减少车站内的可燃材料使用,故要求车站各部位的装修材料均应采用不燃材料。
对于地上车站中具有自然排烟条件的房间,可以适当降低其地面装修材料的燃烧性能,但仍要尽量采用不燃材料。对于地上的无窗房间或不可开启窗扇的地上房间,其装修材料的要求仍要按照本标准对地下车站的要求确定,即全部采用不燃材料。
6.3.7 供乘客疏散通道、楼梯的地面材料应具有防滑功能,对有坡的通道,坡度要小于1:12,并注意设置防滑槽(条),确保乘客疏散便捷、安全。
6.3.8 除垃圾箱外,在车站内设置的广告灯箱、导向标志、座椅等固定设施,由于体量小并考虑到制造和环境布置要求,可采用难燃性材料。
6.3.9 车站内使用玻璃的部位主要有站台门、广告灯箱、疏散指示标志与照明灯具的防护罩等,这些部位采用安全玻璃,可以减少玻璃破碎后对人员的伤害,减小对人员疏散的影响。
7 消防给水与灭火设施
7.1 一般规定
7.1.1 除高架区间外,地铁工程应设置室内外消防给水系统。
7.1.2 消防用水宜由市政给水管网供给,也可采用消防水池或天然水源供给。利用天然水源时,应保证枯水期最低水位时的消防用水要求,并应设置可靠的取水设施。
7.1.3 室内消防给水应采用与生产、生活分开的给水系统。消防给水应采用高压或临时高压给水系统。当室内消防用水量达到最大流量时,其水压应满足室内最不利点灭火系统的要求,消防给水管网应设置防超压设施。
7.1.4 消防用水量应按车站或地下区间在同一时间内发生一次火灾时的室内外消防用水量之和计算,并应符合下列规定:
1 地铁建筑内设置消火栓系统、自动喷水灭火系统等灭火设施时,其室内消防用水量应按同时开启的灭火系统用水量之和计算;
2 控制中心和车辆基地的消防用水量应符合现行国家标准《消防给水及消火栓系统技术规范》GB 50974的规定。
7.1.5 自动喷水灭火系统的管网宜与室内消火栓系统的管网分开设置。
7.1.6 地铁工程地下部分室内外消火栓系统的设计火灾延续时间不应小于2.00h,地上建筑室内外消火栓系统的设计火灾延续时间应符合现行国家标准《消防给水及消火栓系统技术规范》GB 50974的规定,自动喷水灭火系统的设计火灾延续时间应符合现行国家标准《自动喷水灭火系统设计规范》GB 50084的规定。
7.1.7 地下车站和设置室内消火栓系统的地上建筑应设置消防水泵接合器,并应符合下列规定:
1 消防水泵接合器的数量应按室内消防用水量经计算确定,每个消防水泵接合器的流量应按10L/s~15L/s计算;
2 消防水泵接合器应设置在室外便于消防车取用处,地下车站宜设置在出入口或风亭附近的明显位置,距离室外消火栓或消防水池取水口宜为15m~40m;
3 消防水泵接合器宜采用地上式,并应设置相应的永久性固定标识,位于寒冷和严寒地区应采取防冻措施。
条文说明
7.1.1 根据我国当前的经济、技术条件,地铁工程应以消火栓系统作为其基本灭火设施。为确保室内外消火栓系统在地铁工程发生火灾时的用水需要,本条规定地铁工程应设置室内外消防给水系统。对于消防给水系统的具体技术要求和系统设计,除本标准有明确规定者外,其他要求应符合现行国家标准《消防给水及消火栓系统技术规范》GB 50974的规定。
7.1.2 消防给水系统是目前国内外扑救地铁火灾的主要灭火设施,确保消防给水水源十分重要。本条规定了地铁消防给水水源的基本要求。为了节省投资,因地制宜,由城市公共的市政给水管网、消防水池或天然水源供给均可以。但是无论采用哪种水源,都应确保火灾时消防给水系统供水的可靠性和保证率。
采用城市给水管网直接供水时,应保证在火灾延续时间内的消防用水量;采用天然水源时,应保证枯水期最低水位时的消防用水量,同时要考虑车站内所设置的自动喷水灭火系统不会因水中悬浮物等杂质堵塞喷头;如水源不足时,可以采取设置消防水池等措施来保证消防用水需求。
7.1.3 高压给水系统是指管网内经常保持满足灭火时所需的压力和流量,灭火时不需要采用任何其他加压设备而直接使用灭火设备进行灭火的系统。临时高压给水系统是指管网内最不利点平时的水压和流量不能满足灭火需要,在火灾时需要启动设置在消防水泵房内的消防泵,使管网内的压力和流量达到灭火的要求。
目前,在地铁消防给水系统中应用较为广泛的是稳高压给水系统,即管网内经常保持足够压力,压力由稳压泵或气压给水设备等增压设施来保证。
7.1.4 根据本标准总则中的要求,在一座车站及其相邻区间的消防用水量是按照一次火灾时需要同时使用的灭火设施的用水量之和来计算。车站或区间仅设置消火栓系统时,消防用水量为该车站或区间的室内和室外消火栓系统的用水量之和;当车站内还设置了自动喷水灭火系统等其他水消防设施时,则还应增加同时开启的其他水灭火系统的全部用水量。车辆基地的消防用水量应按基地内室内外消火栓系统和其他水消防系统的用水量之和最大的一个单体建筑的全部消防用水量计算。
7.1.5 自动喷水灭火系统是控制建筑内初期火灾的有效灭火设施之一,能够在无人操作的情况下自动启动;消火栓系统是建筑火灾和列车火灾扑救的基本设施。两个系统的灭火成功率均与供水的可靠性密切相关,为避免两套系统互相干扰,本条要求这两类不同系统的供水管网要尽量分开设置。
7.1.6 火灾延续时间为消防车到达火场并开始出水时起,至火灾被基本扑灭时止的一段时间。火灾延续时间是根据火灾统计资料、国内经济水平以及消防力量等情况综合权衡确定的。根据火灾统计,城市,居住区,工厂,丁、戊类仓库的火灾延续时间较短,绝大部分在2.00h之内。至目前为止,尚无可靠、充分的地铁火灾延续时间的统计数据,因此本标准考虑到地铁工程中的火灾荷载,参照民用建筑和隧道的有关火灾延续时间,规定地下部分的室内外消火栓系统的火灾延续时间不应小于2.00h。
7.1.7 本条规定了车站和地铁其他建筑设置消防水泵接合器的基本要求。水泵接合器是用于外部消防车或移动水泵增援供水的设施,当系统供水泵不能正常供水时,要由消防车或移动水泵连接水泵接合器向建筑内的水消防系统供水。消防车能长时间正常运转且能发挥消防车较大效能时的流量一般为10L/s~15L/s,因此每个水泵接合器的流量应按10L/s~15L/s确定。
水泵接合器要设置在消防车能够到达并且方便消防车安全停靠和连接水泵接合器的位置,水泵接合器的布置间距一般不小于5m,水泵接合器与室外消火栓的间距一般为15m~40m;当采用消防水池作为水源时,消防水池取水口与水泵接合器的间距同样要保证15m~40m。
水泵接合器采用地上式,并设置永久性固定标识等,可帮助消防人员到达现场后迅速确定其位置,尽快展开扑救。
7.2 室外消火栓系统
7.2.1 除地上区间外,地铁车站及其附属建筑、车辆基地应设置室外消火栓系统。
7.2.2 地下车站的室外消火栓设置数量应满足灭火救援要求,且不应少于2个,其室外消火栓设计流量不应小于20L/s。
7.2.3 地上车站、控制中心等地上建筑和地上、地下车辆基地的室外消火栓设计流量,应符合现行国家标准《消防给水及消火栓系统技术规范》GB 50974的规定。
7.2.4 主变电所的室外消火栓设计流量不应小于表7.2.4的规定。
表7.2.4 主变电所的室外消火栓设计流量

7.2.5 车站消防给水系统的进水管不应少于2条,并宜从两条市政给水管道引入,当其中一条进水管发生故障时,另一条进水管应仍能保证全部消防用水量;当车站周边仅有一条市政枝状给水管道时,应设置消防水池。
7.2.6 车辆基地的室外消防给水系统宜与生产、生活给水管道合并,当生产、生活用水量达到最大小时用水量时,合并的给水管道系统仍应能保证全部消防用水量。
7.2.7 室外消火栓宜采用地上式。地上式消火栓应有1个DN150或DN100和2个DN65的栓口,地下式消火栓应有DN100和DN65的栓口各1个。位于寒冷和严寒地区时,室外消火栓应采取防冻措施。室外消火栓应设置相应的永久性固定标识。
7.2.8 室外消火栓的布置间距不应大于120m,每个消火栓的保护半径不应大于150m。检修阀之间的消火栓数量不应大于5个。
条文说明
7.2.1 不论是地下车站、地上车站(除不能用水扑救的部位),都需要设置室内、室外消火栓系统。对于区间,应尽量利用市政消防设施。
7.2.2~7.2.4 室外消火栓是消防车的取水点,除提供其保护范围内灭火用的消防水源外,还应承担为消防车补水的功能,为消防车载水扑救消火栓保护范围外的火灾提供水源支持。本条规定了地下车站、地上车站、控制中心等地上建筑和地上、地下车辆基地、主变电所室外消防给水设计流量。
7.2.5 本条规定主要为保证地铁车站消防供水的可靠性。
地铁线路所经过的区域一般都有完善的城市公共给水系统,而且城市给水管网大都采用环状管网进行供水。即使地铁线路经过的区域只有一根市政给水管道通过,但若此给水管道是城市环网的一部分,也可以从该水管上接出2条供水管道,并通过在此2条供水管中间的市政管道上增加一只分隔阀来提高供水的可靠性。若此给水管道是城市枝状管网的一部分,没有条件构成城市环状管网,不满足两路进水的要求时,应设置消防水池。
7.2.6 如涉及要将室外消防给水管与生产、生活给水管合并,一般要征得当地供水和消防等有关部门的同意。在计算车辆基地的消防和生产、生活总用水量时,淋浴水量可按15%计算,浇洒及洗刷用水量可不计算在内。
7.2.7 本条规定了不同地区室外消火栓的选型要求,主要与当地冬季室外温度有关,应结合当地的气候等实际情况合理选用,并采取相应的防护措施,避免影响应急时的使用。
7.2.8 车辆基地为保证环状网供水的可靠性,规定管网上应设置消防检修阀。阀门应设置在管道的三通、四通分水处,阀门的数量按n—1的原则设置(三通n为3,四通n为4)。当两个阀之间消火栓的数量超过5个时,在管网上应增加阀门。
7.3 室内消火栓系统
7.3.1 车站的站厅层、站台层、设备层、地下区间及长度大于30m的人行通道等处均应设置室内消火栓。
7.3.2 地下车站的室内消火栓设计流量不应小于20L/s。地下车站出入口通道、地下折返线及地下区间的室内消火栓设计流量不应小于10L/s。
7.3.3 地上车站、控制中心等地上建筑和地上、地下车辆基地的室内消火栓用水量,应符合现行国家标准《消防给水及消火栓系统技术规范》GB 50974的规定。
7.3.4 主变电所的室内消火栓设计流量不应小于表7.3.4的规定。
表7.3.4 主变电所的室内消火栓设计流量

7.3.5 室内消火栓的布置应符合下列规定:
1 消火栓的布置应保证每个防火分区同层有两支水枪的充实水柱同时到达任何部位,水枪的充实水柱不应小于10m;
2 消火栓的间距应经计算确定,且单口单阀消火栓的间距不应大于30m,两只单口单阀为一组的消火栓间距不应大于50m,地下区间及配线区内消火栓的间距不应大于50m,人行通道内消火栓的间距不应大于20m;
3 站厅层、侧式站台层和车站设备管理区宜设置单口单阀消火栓,岛式站台层宜设置两只单口单阀为一组的消火栓;
4 除地下区间外,消火栓箱内应配备水带、水枪和消防软管卷盘;
5 地下区间可不设置消火栓箱,但应将水带、水枪等配套消防设施设置在车站站台层端部的专用消防箱内,并应有明显标志;
6 消火栓口距离地面或操作基本面宜为1.1m;
7 消火栓口处的出水动压力大于0.7MPa时,应设置减压措施。
7.3.6 室内消防给水管道的布置应符合下列规定:
1 车站和地下区间的消火栓给水管道应连成环状;
2 地下区间上、下行线应各从地下车站引入一根消防给水管,并宜在区间中部连通,且在车站端部应与车站环状管网相接;
3 室内消防给水管道应采用阀门分成若干独立管段,阀门的布置应保证检修管道时关闭停用消火栓的数量不大于5个;
4 消防给水管道上的阀门应保持常开状态,并应有明显的启闭标志;
5 在寒冷和严寒地区,站厅与室外连通部分的明露消防给水管道应采取防冻措施或采用干式系统;
6 当车站、区间采用临时高压给水系统时,车站控制室及消火栓处应设置消火栓的水泵启动按钮。
条文说明
7.3.1 本条规定了室内消火栓的具体设置位置。
7.3.2~7.3.4 这三条参照现行国家标准《地铁设计规范》GB 50157和《消防给水及消火栓系统技术规范》GB 50974规定了地下车站、地上车站、控制中心等地上建筑和地上、地下车辆基地、主变电所室内消防给水设计流量。
7.3.5 根据相关统计,消防部队加强第一出动后,第一出动的灭火成功率在95%以上。第一出动所使用的水枪数最小为2支,因此要求消火栓的设置应能保证任一着火点至少能被2股水柱同时覆盖。
室内消火栓既供专业消防人员使用,也供地铁内的工作人员等使用,因此消火栓箱内应配置消防水带和水枪,消火栓箱的布置间距要根据我国水带的正常长度和保护空间的高度及充实水柱等要求确定。
地下区间火灾后要依靠专业消防人员进行灭火救援,且空间十分紧张,因此在区间内可以不设置消火栓箱,但应在站台进区间的方便取用处设置消防器材箱,并配备相应的水带、水枪等器材,方便进入区间的救援人员取用。
根据现行国家标准《消防给水及消火栓系统技术规范》GB 50974的规定,消火栓口处的出水动压力大于0.7MPa时,设置减压措施。
7.3.6 本条要求主要保证室内消火栓处供水的可靠性。消火栓系统的管网在车站可以采用站厅层的水平环网和站台层竖向环网,区间与两车站端部连接形成大环,也可以在区间中部联通(区间联络通道)形成环网。
地下区间上、下行线应各从地下车站引入一根消防给水管,并在区间联络通道(兼区间疏散通道)内将区间上、下行线内的消防给水管联通形成环网,能最大限度地保证消防供水的安全。
消防管道上为了抢修与维修关启方便,一般采用蝶阀,在进入区间的管道前安装手动和电动两用蝶阀,在区间中部连通管上安装手动蝶阀,阀门保持常开。
处于寒冷地区并与室外连通部分的明露消防管道,要根据当地的气候情况采用阻燃、不燃的保温材料或电伴热系统进行保温。
7.4 自动灭火系统与其他灭火设施
7.4.1 下列场所应设置自动喷水灭火系统:
1 建筑面积大于6000m²的地下、半地下和上盖设置了其他功能建筑的停车库、列检库、停车列检库、运用库、联合检修库;
2 可燃物品的仓库和难燃物品的高架仓库或高层仓库。
7.4.2 下列场所应设置自动灭火系统:
1 地下车站的环控电控室、通信设备室(含电源室)、信号设备室(含电源室)、公网机房、降压变电所、牵引变电所、站台门控制室、蓄电池室、自动售检票设备室;
2 地下主变电所的变压器室、控制室、补偿装置室、配电装置室、蓄电池室、接地电阻室、站用变电室等;
3 控制中心的综合监控设备室、通信机房、信号机房、自动售检票机房、计算机数据中心、电源室等无人值守的重要电气设备用房。
7.4.3 除区间外,地铁工程内应配置建筑灭火器。车站内的公共区、设备管理区、主变电所和其他有人值守的设备用房设置的灭火器,应按现行国家标准《建筑灭火器配置设计规范》GB 50140规定的严重危险级配置。
条文说明
7.4.2 地铁是公共交通系统,火灾后需快速恢复交通,为防止次生灾害的发生,采用的灭火剂不应对设备产生损害。电气设备火灾时,不能使用导电性能良好的灭火介质进行灭火。自动灭火系统一般采用绿色环保的气体灭火系统和技术可靠、经济合理且消防部门认可的其他自动灭火系统。
7.5 消防水泵与消防水池
7.5.1 当市政给水管网能满足消防用水量要求,但供水压力不能满足设计消防供水压力要求时,应设置消防水泵。消防水泵宜从市政给水管网取水加压,并应在消防进水管的起端设置倒流防止器或其他能防止倒流污染的装置。
7.5.2 当市政给水管网的供水量不能满足设计消防用水量要求时,应设置消防水池、消防水泵及增压装置。
7.5.3 地面车站、高架车站采用消防水泵加压供水的消火栓给水系统,应设置稳压装置及气压设备,可不设置高位水箱。
7.5.4 从给水管网直接吸水的消防水泵,其扬程计算应按市政给水管网的最低水压计,并以室外给水管网的最高水压校核管网压力。
7.5.5 当市政供水压力不能保证自动喷水灭火系统最不利点的工作压力或不能满足消火栓给水系统最不利点的静水压力时,车站及地铁附属建筑的消防给水系统应设置增压装置。对于无法利用市政给水管网的压力进行稳压的临时高压系统,应设置稳压泵和稳压罐。室内消火栓给水系统和自动喷水灭火系统的稳压罐的有效容积均不应小于150L。
7.5.6 消火栓系统和自动喷水灭火系统的消防水泵均应设置备用泵,其工作能力不应小于其中最大一台消防水泵的要求。
7.5.7 符合下列情况之一时,车辆基地应设置消防水池:
1 当生产、生活用水量达到最大时,市政给水管网的进水管或天然水源不能满足室内外消防用水量;
2 市政给水管网为枝状或只有1条进水管,且室内外消防用水量之和大于20L/s或建筑高度大于50m;
3 市政给水管网的流量小于车辆基地内一次火灾需要的室内外消防给水设计流量。
条文说明
7.5.1~7.5.3 根据各城市室外市政管网的管径、供水情况和供水条件的不同,因地制宜,制定不同的消防供水方式,使消防供水更安全更合理。
7.5.4 从给水管网直接吸水的消防水泵,其扬程计算应按市政给水管网的最低水压计,并以室外给水管网的最高水压校核管网压力,是为了在最不利的情况下,保证消防系统始终处于正常工作状态。
7.5.5 本条规定了稳压罐的有效容积,目的在于防止稳压泵频繁启动。
7.5.6 消防水泵是当火灾发生时,由水泵提供该系统灭火所需的水量和水压。
消防水泵的设计流量应采用满足规范要求并经计算确定的消防用水设计秒流量。备用泵的设置是为保证供水设备安全可靠,能够不间断地提供灭火所需的用水量和水压;备用泵的工作能力不应小于最大一台主用消防水泵的要求。
7.5.7 本条规定了车辆基地消防水池的设置要求,当室外市政管网符合条文中所述的其中任何一种情况时,车辆基地就要设置消防水池。
8 防烟与排烟
8.1 一般规定
8.2 车站、控制中心、主变电所与车辆基地
8.3 区间
8.4 排烟设备与管道
8.1 一般规定
8.1.1 下列场所应设置排烟设施:
1 地下或封闭车站的站厅、站台公共区;
2 同一个防火分区内总建筑面积大于200m²的地下车站设备管理区,地下单个建筑面积大于50m²且经常有人停留或可燃物较多的房间;
3 连续长度大于一列列车长度的地下区间和全封闭车道;
4 车站设备管理区内长度大于20m的内走道,长度大于60m的地下换乘通道、连接通道和出入口通道。
8.1.2 防烟楼梯间及其前室、避难走道及其前室应设置防烟设施。地下车站设置机械加压送风系统的封闭楼梯间、防烟楼梯间宜在其顶部设置固定窗,但公共区供乘客疏散、设置机械加压送风系统的封闭楼梯间、防烟楼梯间顶部应设置固定窗。
8.1.3 防烟、排烟系统的设计应符合下列规定:
1 当对站厅公共区进行排烟时,应能防止烟气进入出入口通道、换乘通道、站台、连接通道等邻近区域;
2 当对站台公共区进行排烟时,应能防止烟气进入站厅、地下区间、换乘通道等邻近区域;
3 当对地下区间进行纵向控烟时,应能控制烟流方向与乘客疏散方向相反,并应能防止烟气逆流和进入相邻车站、相邻区间;
4 对于设置自动灭火系统的设备用房,其防烟或排烟系统的控制应能满足自动灭火系统有效灭火的需要。
8.1.4 机械防烟系统和机械排烟系统可与正常通风系统合用,合用的通风系统应符合防烟、排烟系统的要求,且该系统由正常运转模式转为防烟或排烟运转模式的时间不应大于180s。
8.1.5 站厅公共区和设备管理区应采用挡烟垂壁或建筑结构划分防烟分区,防烟分区不应跨越防火分区。站厅公共区内每个防烟分区的最大允许建筑面积不应大于2000m²,设备管理区内每个防烟分区的最大允许建筑面积不应大于750m²。
8.1.6 公共区楼扶梯穿越楼板的开口部位、公共区吊顶与其他场所连接处的顶棚或吊顶面高差不足0.5m的部位应设置挡烟垂壁。
8.1.7 挡烟垂壁或划分防烟分区的建筑结构应为不燃材料且耐火极限不应低于0.50h,凸出顶棚或封闭吊顶不应小于0.5m。挡烟垂壁的下缘至地面、楼梯或扶梯踏步面的垂直距离不应小于2.3m。
条文说明
8.1.1 本条规定了地铁工程中需要设置排烟设施的场所,这些场所具体采用何种排烟方式,则要根据其排烟条件和国家相关标准的要求确定。
在第2款中计算同一防火分区内地下车站设备管理区的总建筑面积时,可不计算下列用房的建筑面积:
(1)采用自动灭火系统保护的房间;
(2)消防水泵房、污水泵房、废水泵房、厕所、盥洗室、茶水间、清扫室、气瓶室和折返线维修室等用房;
(3)已经单独设置排烟系统的设备管理用房和走道。
第3款主要考虑到地铁区间长度不足一列列车长度时,列车车头或车尾距离洞口很近,乘客可在车头或车尾端门下车直接疏散至室外。此外,短区间的常用排烟方案是采用悬挂射流风机的方式,但射流风机处于火灾高温现场、受列车阻挡作用有限,行车隧道吊装射流风机易受震动影响且维护不便。综合以上因素,将需要设置排烟设施的地下区间及全封闭区间的连续长度规定为大于一列列车长度。
第4款对需要排烟的通道长度做了规定。地铁为人员密集的场所,地下车站不仅有通往地面的出入口通道,往往还有与其他非地铁功能区或地铁线路转换的地下连接通道,这些通道的数量、长度以及体量在地铁中占有相当的比重。参照现行国家标准《建筑设计防火规范》GB 50016,规定车站设备区内长度大于20m的内走道需要设置排烟设施;考虑到换乘通道和车站公共区通向其他区域的通道较宽、较顺直,出入口通道一端还直通室外,规定该类通道的长度大于60m时需要设置排烟设施。
8.1.2 本条参照现行国家标准《建筑设计防火规范》GB 50016规定了地铁工程中需要设置防烟设施的部位,并参照建筑防烟、排烟系统专业规范对楼梯间顶部固定窗的设置做出规定。
地下车站中的楼梯间视为人员疏散的安全区域,应采取防止火灾烟气侵入的措施。当地下车站设备区中联系各层的楼梯间不直接通往地面时,如位于马路或其他建筑内等位置,其顶部不具备设置固定窗的条件。鉴于该楼梯间并非供乘客疏散使用,且车站火灾时消防人员还可以通过公共区的出入口进入地下救援。因此,当楼梯间顶部不具备开窗条件时,不要求开设固定窗。其他情况仍需要与建筑防烟、排烟系统专业规范对民用建筑的要求一致,即应在设置机械加压送风系统的封闭楼梯间、防烟楼梯间的顶部设置固定窗。
8.1.3 本条规定了地铁工程中防烟、排烟系统设计的基本目标和原则。
地铁工程与其他场所的主要区别在于列车运行形成的活塞风会严重干扰与其相连通的车站公共区或邻近区间的烟气流动。当车站公共区着火时,该车站的上、下行邻近区间很可能有载客列车需要过站,而列车过站时形成的活塞风会破坏热烟层流,在很短时间内使原本浮在顶棚下的热烟扩散至整个车站,使得乘客的疏散环境恶化;列车离站时又会将车站烟气带入区间,导致烟气运动紊乱,蔓延范围扩大。因此当车站设置了全封闭站台门时,要充分利用站台门的封闭性来减小列车运行所带来的气压变化对烟气蔓延的影响。本标准第8.2.3条也要求车站公共区着火时列车过站的全封闭站台门联动关闭。但是当地铁采用闭式或开闭式系统时(即站台安装非全封闭站台门时),站台候车区与车站区间相互贯通,此时的组织气流应能防止烟气进入车站邻接区间,并要求列车减速过站,以降低活塞风对车站烟气扩散的影响。
8.1.4 本条规定了地铁通风系统兼作防烟或排烟系统时的基本性能要求,机械防烟系统不包含楼梯间防烟系统,正常通风系统含全空气空调风系统。
地铁工程绝大部分为地下工程,空间十分紧张。为充分利用空间,地铁车站或区间的火灾事故通风系统常会与正常通风系统共用,或者一个通风系统同时服务多个区域、承担多种功能。这就使得通风系统的组成、控制模式、功能转换时需动作的设备数量多,通风系统的正常运行模式转换为火灾事故运行模式的时间存在延长的风险。为了确保地铁工程在火灾时能快速反应,兼顾地铁工程的实际情况,本条规定通风系统由正常运转模式转为完整的火灾事故运行模式的时间不应大于180s。该时间包括风机本身启动时间、联动设备(如风阀)的启动时间和风机(组)与风机(组)之间启动所需时间等。
8.1.5 本条规定了车站公共区和设备管理区的防烟分区划分方法。
本条未明确要求站台公共区划分防烟分区,主要考虑到本标准第8.2.4条已要求在站台通向站厅的楼梯、扶梯口能产生不小于1.5m/s的向下风速,而站台公共区本身的建筑面积不会太大,且呈长条形状,划分防烟分区的作用不大。比如,8节编组的站台公共候车区的建筑面积约2500m²;采用闭式或开闭式系统的站台,车站轨行区与站台公共候车区完全贯通,6节编组列车时站台公共区的建筑面积约3000m²,划分防烟分区困难。站厅公共区的建筑面积通常较大,与站台的连通口较多,将防烟分区划分过小,不利于烟气控制。
8.1.6、8.1.7 这两条规定了挡烟垂壁的设置部位和挡烟垂壁及划分防烟分区的建筑结构的材料性能要求。
尽管车站站厅公共区与站台公共区可以作为同一个防火分区,但为阻止烟气蔓延,应分别划分为不同的防烟分区。因此在这些区域相连通的开口部位,当建筑的梁等结构不能满足挡烟垂壁的要求时,应该设置挡烟垂壁。其他部位同理要求设置挡烟垂壁。
8.2 车站、控制中心、主变电所与车辆基地
8.2.1 地上车站宜采用自然排烟方式,其中不符合自然排烟要求的场所应设置机械排烟设施。
8.2.2 采用自然排烟的车站或路堑式车站,外墙上方或顶盖上可开启排烟口的有效面积不应小于所在场所地面面积的2%,且区域内任一点至最近自然排烟口的水平距离不应大于30m。常闭的自然排烟口(窗)应设置自动和手动开启的装置。
8.2.3 地下车站公共区的排烟应符合下列规定:
1 当站厅发生火灾时,应对着火防烟分区排烟,可由出入口自然补风,补风通路的空气总阻力应符合本标准第8.2.6条的规定;当不符合本标准第8.2.6条的规定时,应设置机械补风系统。
2 当站台发生火灾时,应对站台区域排烟,并宜由出入口、站厅补风。
3 车站公共区发生火灾、驶向该站的列车需要越站时,应联动关闭全封闭站台门。
8.2.4 排烟风机及风管的风量应符合下列规定:
1 排烟量应按各防烟分区的建筑面积不小于60m³/(m²·h)分别计算;
2 当防烟分区中包含轨道区时,应按列车设计火灾规模计算排烟量;
3 地下站台的排烟量除应符合本条第1款、第2款的要求外,还应保证站厅到站台的楼梯或扶梯口处具有不小于1.5m/s的向下气流;
4 排烟风机的风量应按所负担的防烟分区中最大一个防烟分区的排烟量、风管(道)的漏风量及其他防烟分区的排烟口或排烟阀的漏风量之和计算;
5 排烟风机的风量不应低于7200m³/h。
8.2.5 机械排烟系统中的排烟口和排烟阀的设置应符合下列规定:
1 排烟口和排烟阀应按防烟分区设置;
2 防烟分区内任一点至最近排烟口的水平距离不应大于30m,当室内净高大于6m时,该距离可增加至37.5m;
3 排烟口底边距挡烟垂壁下沿的垂直距离不应小于0.5m,水平距离安全出口不应小于3.0m;
4 排烟口的风速不宜大于7m/s;
5 正常为关闭状态的排烟口和排烟阀,应能在火灾时联动自动开启;
6 建筑面积小于或等于50m²且需要机械排烟的房间,其排烟口可设置在相邻走道内。
8.2.6 排烟区应采取补风措施,并应符合下列规定:
1 当补风通路的空气总阻力不大于50Pa时,可采用自然补风方式,但应保证火灾时补风通道畅通;
2 当补风通路的空气总阻力大于50Pa时,应采用机械补风方式,且机械补风的风量不应小于排烟风量的50%,不应大于排烟量;
3 补风口宜设置在与排烟空间相通的相邻防烟分区内;当补风口与排烟口设置在同一防烟分区内时,补风口应设置在室内净高1/2以下,水平距离排烟口不应小于10m。
8.2.7 车辆基地的地下停车库、列检库、停车列检库、运用库、联合检修库、镟轮库、工程车库等场所应设置排烟系统。
8.2.8 设置自动灭火系统的设备房应符合下列规定:
1 在穿越该房间开设风口的通风管上,应设置动作温度为70℃的防火阀;
2 防火阀应能与自动灭火系统的启动联动关闭;
3 当灭火介质的相对密度大于1时,排风口应设置在该房间的下部。
8.2.9 排烟风机应与排烟口(阀)联动,当任何一个排烟口(阀)开启或排风口转为排烟口时,系统应能自动转为排烟状态;当烟气温度大于280℃时,排烟风机应与风机入口处或干管上的防火阀关闭联动关闭。
8.3 区间
8.3.1 地下区间的排烟宜采用纵向通风控制方式,采用纵向通风方式确有困难的区段,可采用排烟道(管)进行排烟。地下区间的排烟尚应符合下列规定:
1 采用纵向通风时,区间断面的排烟风速不应小于2m/s,不得大于11m/s;
2 正线区间的通风方向应与乘客疏散方向相反,列车出入线、停车线等无载客轨道区间的通风方向应能使烟气尽快排至室外。
8.3.2 地下区间的排烟应考虑相邻区间及出入线、渡线、联络线等对着火区间气流的不利影响。
8.3.3 地下区间内排烟射流风机宜备用一组,且不宜吊装在隧道上方。
8.3.4 两座车站之间正常同时存在两列或两列以上列车同向运行的地下区间,排烟时应能使非着火列车处于无烟区。
8.3.5 设置隔声罩的地上区间和路堑式地下区间的排烟应采用自然排烟方式。自然排烟口的设置应符合下列规定:
1 排烟口应设于区间外墙上方或顶板上,有效面积不应小于该区间水平投影面积的5%;
2 常闭的自然排烟口应设置自动和手动开启装置。
8.4 排烟设备与管道
8.4.1 排烟风机宜设置在排烟区的同层或上层,并宜与补风机、加压送风机分别设置在不同的机房内,排烟管道宜顺气流方向向上坡或水平敷设。地下车站的排烟风机确需与补风机、加压送风机共用机房时,设置在机房内的排烟管道及其连接件的耐火极限不应低于1.50h。
8.4.2 地下车站的排烟风机在280℃时应能连续工作不小于1.0h,地上车站和控制中心及其他附属建筑的排烟风机在280℃时应能连续工作不小于0.5h。
8.4.3 地下区间的排烟风机的运转时间不应小于区间乘客疏散所需的最长时间,且在280℃时应能连续工作不小于1h。
8.4.4 排烟系统中烟气流经的风阀、消声器和软接头等辅助设备,其耐高温性能不应低于风机的耐高温性能。
8.4.5 火灾时需要运行的风机,从静态转换为事故状态所需时间不应大于30s,从运转状态转换为事故状态所需时间不应大于60s。
8.4.6 火灾时用于风机的保护装置不应影响风机的排烟功能。
8.4.7 用于防烟与排烟的管道、风口与阀门应符合下列规定:
1 管道、风口与阀门应采用不燃材料制作;
2 排烟管道不应穿越前室或楼梯间,必须穿越时,管道的耐火极限不应低于2.00h。
8.4.8 除承担轨行区域的防排烟系统外,其他区域的防排烟系统管道应采用金属或其他非土建井道。金属防烟或排烟风管道内的风速不应大于20m/s,非金属防烟或排烟管道内的风速不应大于15m/s。
8.4.9 除隧道通风系统外,下列部位应设置防火阀,防火阀的动作温度应根据风管的用途确定:
1 垂直风管与每层水平风管相接处的水平管段上;
2 排烟风机的入口处;
3 风管穿越防火分区的防火墙和楼板处;
4 风管穿越有隔墙的变形缝处。
条文说明
8.4.1 本条规定了排烟风机的设置位置和排烟管道敷设的基本要求。排烟风机设置在排烟区域的同一建筑层面或较高建筑层面,可使风机位于排烟系统的顶部,排烟时顺应烟气自然扩散方向,使排烟顺畅。若将排烟风机设在比排烟区域低的建筑层内,比如将承担地下一层排烟的风机设在地下二层机房内,会将地下一层的烟气下拉至地下二层,不利于排烟且增加烟气扩散的风险。
排烟风机与补风机、加压送风机设在同一机房时,一旦烟气外泄,补风机或加压送风机可能将烟气送到其他区域,因此要求排烟风机与补风机、加压送风机宜分设机房。但受车站规模限制,地下车站设备用房非常紧张,当排烟风机房确实没有条件与补风机、加压送风机房分开设置时,可以共用机房;但为了防止排烟风管在高温作用下破损等原因导致烟气窜入补风或送风系统,要求在机房范围内的排烟风管及其连接件应具备不低于1.50h的耐火极限。
8.4.2~8.4.6 本标准将车站的排烟风机的耐高温性能规定为在280℃时能持续工作1h,也与280℃排烟防火阀的熔断温度相匹配。考虑到地上车站的条件优于地下空间,将设置在地上车站内的排烟风机耐高温时间确定为30min。此外,地铁内采用的风机容量较大,为确保火灾时风机能够迅速转换至火灾状态,规定了风机的启动时间与状态转换时间。
大型风机一般都设有故障检测或保护装置。非火灾工况时,风机在运转过程中发出故障报警后要求自动停机报故障检修,但火灾时即使报警也不能停机,应保持继续运转。
8.4.7 本条为强制性条文。防、排烟管道是火灾时排除烟气或控制烟气流动的关键组件。为防止管道本身因高温烘烤而起火或变形,影响排烟或防排烟效果,规定防排烟管道、风口及阀门等组件应采用不燃材料制作。为确保楼梯间及前室的安全性,要求排烟管道不应穿越这些区域,如确有困难必须穿越时,应达到2.00h的耐火极限要求。
8.4.8 轨行区域包含车站轨行区域和区间隧道轨行区域。承担轨行区域的防排烟系统的风井(道)系指区间事故活塞风井(道)、地下车站排风(烟)井(道)。通常,地铁系统内的通风量很大,单系统排烟风量高达20×104m³/h~30×104m³/h,采用外接风管不现实,并且过去在轨行区上部的排烟风道采用过外接风管的做法,但由于列车运行振动及腐蚀影响,部分管道脱落、维护困难,成为严重的行车安全隐患。从已运营地铁线路采用土建风道的情况看,实测的排烟效果基本上都达到设计要求。因此,轨行区域的防排烟管道、风井(道)采用土建风道是现实可行的。除轨行区域以外的其他区域,如车站公共区、设备区及车辆基地、控制中心等地面附属建筑,其中的防排烟系统的管道材质要求应与建筑防烟排烟系统专业规范的要求一致,不应采用土建井道。
考虑到风管(道)的承压能力、系统漏风量以及风机选型,本条对金属风管和非金属风管内的最高排烟风速进行了限制,与现行国家标准《地铁设计规范》GB 50157采用相同标准。
8.4.9 在风管的相关位置设防火阀是为了防止火势和烟气的蔓延。由于隧道活塞和机械通风系统的风阀面积达15m²~30m²,一般采用组合式风阀,而目前这种风阀尚不具备防火阀的功能和性能,故本条不适用于此类系统。
9 火灾自动报警
9.1 一般规定
9.1.1 车站、地下区间、区间变电所及系统设备用房、主变电所、控制中心、车辆基地应设置火灾自动报警系统。
9.1.2 正常运行工况需控制的设备,应由环境与设备监控系统直接监控;火灾工况专用的设备,应由火灾自动报警系统直接监控。
9.1.3 正常运行与火灾工况均需控制的设备,平时可由环境与设备监控系统直接监控,火灾时应能接收火灾自动报警系统指令,并应优先执行火灾自动报警系统确定的火灾工况。
9.1.4 换乘车站的火灾自动报警系统宜集中设置,按线路设置的火灾自动报警系统之间应能相互传输并显示状态信息。
9.1.5 车辆基地上部设置其他功能的建筑时,两者的控制中心应能实现信息互通。
9.1.6 地铁工程的火灾自动报警系统应由中央级、车站级或车辆基地级、现场级火灾自动报警系统及相关通信网络组成。
条文说明
9.1.1 本条对地铁应设置火灾自动报警系统的场所做了原则规定,不同场所需要设置什么类型的火灾自动报警系统,则要视该场所的规模、具体用途、使用人数、环境条件和火灾特性等因素来确定。
9.1.2、9.1.3 地铁部分通风、空调系统设备与防排烟系统设备合用。为避免同一设备监控设施重复设置,减少投资、方便管理,本条规定正常运行与火灾工况均需控制的设备,平时可由环境与设备监控系统直接监控,执行联动控制的环境与设备监控系统设备应采用冗余配置,监控内容应完全满足火灾自动报警系统联动控制的需求。
9.1.4 随着地铁网络化的发展,地铁换乘车站越来越多,车站级火灾自动报警系统要预留后建系统的通信接口,以便实现火灾报警信息的互通,统一协调火灾时的防排烟控制模式。车站火灾信息应分送各有关线路控制中心,便于行车指挥。除通道换乘车站外的其他形式的换乘车站,消防控制室要尽量集中设置,火灾自动报警系统宜按集中报警系统设计,便于消防联动功能的实现以及运营时的统一管理和火灾时的统一指挥。
9.1.5 在地铁车辆基地进行上盖开发的情况越来越普遍,车辆基地和车辆基地上部的其他设施或建筑的消防控制室是各自独立设置、各自独立控制的。为便于车辆基地或车辆基地上部的其他设施或建筑发生火灾时能相互及时了解和掌握火灾情况,以便采取相应的安全措施等行动,有必要采取相应的技术措施,使各自的火灾信息等能在各自的消防控制室或值班室显示出来。因此在相应的控制系统设计时,要保证系统都具备能显示自身和对方火灾信息以及向对方通报火灾信息的功能。
9.1.6 本条规定了地铁工程中火灾自动报警系统的基本组成。
9.2 监控管理
9.2.1 中央级火灾自动报警系统,应具备显示全线火灾报警信息和对全线消防设备实行集中控制、故障报警、信息显示、查询打印等功能,并应靠近行车调度设置在控制中心的中央控制室内。中央控制室内的综合显示屏上应能显示全线的火灾信息。
9.2.2 车站级火灾自动报警系统,应具备对其所管辖范围内车站和相邻区间的消防设备实行监控管理、故障报警、信息显示、查询打印及信息上传控制中心等功能,并应设置在车站控制室内。主变电所宜设置区域报警控制盘,并应纳入邻近车站统一管理。
9.2.3 车辆基地级火灾自动报警系统应具备对其所辖范围独立执行消防监控管理,显示整个车辆基地火灾报警信息和对本辖区进行消防控制、故障报警、信息显示、查询打印及信息上传控制中心等功能,并应设置消防控制室。
9.2.4 车辆基地的消防控制室宜设置在综合楼或停车列检库等的办公区域内。消防控制室内应设置火灾报警控制器、图形显示终端、打印机等设备,在重要库房或办公区域内应设置区域火灾报警控制器,其他建筑的火灾报警设备和消防联动设备均应纳入邻近的区域火灾报警控制器中。
9.2.5 控制中心建筑内的火灾自动报警系统应设置消防控制室。消防控制室宜与控制中心建筑的监控室合设,但应能对其所辖范围独立执行消防监控管理。
9.2.6 现场级火灾自动报警系统网络应独立设置,并应在总线回路中设置短路隔离器,回路中每只总线短路隔离器隔离的火灾探测器、手动火灾报警按钮和模块等消防设备的总数不宜大于32个。
9.2.7 设置在控制中心、车站、车辆基地的火灾报警控制器,应通过骨干信息传输网络连通。骨干信息传输网络宜采用独立的光纤网络或公共传输网络专用通道。
9.3 火灾探测器
9.3.1 下列场所应设置火灾探测器,并宜选用感烟火灾探测器:
1 车站公共区;
2 车站的设备管理区内的房间、电梯井道上部;
3 地下车站设备管理区内长度大于20m的走道、长度大于60m的地下连通道和出入口通道;
4 主变电所的设备间;
5 车辆基地的综合楼、信号楼、变电所和其他设备间、办公室。
9.3.2 防火卷帘两侧应设置感烟火灾探测器。
9.3.3 茶水间应设置火灾探测器,并宜采用感温火灾探测器。
9.3.4 站台下的电缆通道、变电所电缆夹层的电缆桥架上应设置火灾探测器,并宜采用线型感温火灾探测器。
9.3.5 车辆基地的停车库、列检库、停车列检库、运用库、联合检修库及物资库等库房应设置火灾探测器,其中的大空间场所宜采用吸气式空气采样探测器、红外光束感烟火灾探测器及可视烟雾图像探测器等。
9.4 报警及警报装置
9.4.1 下列部位应设置带地址的手动报警按钮:
1 车站公共区、设备管理区、车辆基地内的设备区和办公区、主变电所;
2 地下区间纵向疏散平台的侧壁上;
3 其他长度大于30m的封闭疏散通道。
9.4.2 车站内的消火栓箱旁应设置带地址的手动报警按钮。
9.4.3 车站公共区和设备管理区内应设置火灾报警警铃。
9.4.4 火灾报警警铃应设置在走道靠近楼梯出口处和经常有人工作的部位。
条文说明
9.4.1、9.4.2 城市轨道交通是人员集中场所,除设置自动报警的火灾探测器外,还应设置能人工报警的手动报警按钮,使场所内人员发现火灾时能直接按下手动报警按钮及时报警。手动报警按钮应设置在明显且便于操作的部位。
9.4.3 城市轨道交通车站人员密度较大,火灾时高频率的声响能引起人们的警觉,关注场所动态,因此设置警铃是必要的。同时为避免警报音响引起人员的恐慌,在确认火灾后应先联动广播,后启动警铃,交替循环执行。
9.4.4 因城市轨道交通车站有完善的运营广播系统兼做消防广播,警铃设置在走道靠近楼梯出口处和经常有人工作的部位,其他建筑物声光警报器可按现行国家标准《火灾自动报警系统设计规范》GB 50116的要求设置。
9.5 消防联动控制
9.5.1 消防控制设备宜采用集中控制方式,其动作状态信号应能在消防控制室显示、记录。消防水泵、专用防烟和排烟风机的控制设备应具有自动控制和手动控制方式。
9.5.2 防烟和排烟系统的控制应能在火灾确认后实现下列功能:
1 控制防烟和排烟风机、排烟阀、防火阀,并接收其状态反馈信息;
2 直接向环境与设备监控系统发出报警信息及模式指令,由环境与设备监控系统自动启动防烟和排烟与正常通风合用的设备转入火灾控制模式,并接收模式控制反馈信息;
3 根据控制中心确定的地下区间乘客疏散方向,直接向环境与设备监控系统发出报警信息及模式指令,由环境与设备监控系统自动控制区间两端的事故风机及其风阀转入火灾控制模式,并接收模式控制反馈信息。
9.5.3 站台门的联动开启应由车站控制室值班人员确认后人工控制。自动检票机的联动控制应能联动控制自动检票机的释放,并应能接收自动检票机的状态反馈信息。
9.5.4 门禁的联动控制应符合下列规定:
1 火灾自动报警系统应能将火灾信息发送至门禁系统,由门禁系统控制门解禁;
2 门禁系统应能在车站控制室或消防控制室内手动控制;
3 当供电中断时,门禁系统应能自动解禁。
9.5.5 电梯应能在火灾时通过火灾自动报警系统或环境与设备监控系统联动控制返至疏散层,火灾自动报警系统或环境与设备监控系统应能接收电梯的状态反馈信息,不应直接控制站厅内自动扶梯的启停。
10.0.1 消防通信应包括消防专用电话、防灾调度电话、消防无线通信、视频监视及消防应急广播。
10.0.2 控制中心应具有全线消防救援、调度指挥和上一级防灾指挥中心联网的功能。
10.0.3 控制中心防灾调度应设置119专用直拨电话、广播系统操作终端和视频监视系统独立的监视器及操作终端,车站和车辆基地的消防控制室或值班室等处应设置可直接报警的直拨电话。
10.0.4 地铁全线应设置独立的消防专用电话系统,其设置应符合下列规定:
1 控制中心的消防值班室、车站控制室、车辆基地的消防控制(值班)室应设置消防专用电话总机;
2 消防水泵房、变配电室、通风和排烟机房及其他与消防联动控制有关的机房、自动灭火系统手动操作装置及区域报警控制器或显示器处,应设置消防专用电话分机;
3 手动火灾报警按钮和消火栓按钮等的设置部位应设置电话插孔,电话插孔应按区域采用共线方式接入消防专用电话总机。
10.0.5 地铁全线应设置防灾调度电话系统和防灾无线通信系统,其设置应符合下列规定:
1 防灾调度电话、无线通信总机(台)应设置在控制中心防灾调度;
2 各车站、主变电所、车辆基地防灾值班室应设置防灾调度分机和无线手持台;
3 防灾无线通信系统应满足消防救援需要,且其无线信号应覆盖地铁全线范围。
10.0.6 地下线应设置消防无线引入系统,其设置应符合下列规定:
1 消防无线引入信号应覆盖地铁全线范围;
2 消防无线引入系统的制式应与地面消防无线通信系统保持一致,并应符合当地消防部门的要求;
3 消防无线引入系统应至少提供3个信道,并应提供集中网管界面。
10.0.7 车站、主变电所、车辆基地应设置消防应急广播系统,并宜与运营广播合用。站厅、站台、通道等公共区和设备管理区用房应设置消防应急广播扬声器。
10.0.8 与运营广播合用的消防应急广播系统应符合下列规定:
1 广播系统应具有优先级处理,且消防应急广播应具有最高优先级;
2 控制中心防灾调度台可对全线各车站进行遥控开关机、选站、选区广播或全线统一广播,并应具有接收各车站工作状态的反馈信息和同步录音功能;
3 车站防灾值班员可同时对本车站或分区、分路进行广播,并应设置自动、手动和紧急三种广播模式;
4 广播系统的功率放大器应每台对应一路负载,并应进行n+1配置,备机可自动或手动切换。
10.0.9 车辆客室应设置供乘客与司机或控制中心紧急对讲的装置,并应设置明显的告示牌。
11 消防配电与应急照明
11.1 消防配电
11.1.1 地铁的消防用电负荷应为一级负荷。其中,火灾自动报警系统、环境与设备监控系统、变电所操作电源和地下车站及区间的应急照明用电负荷应为特别重要负荷。
11.1.2 火灾自动报警系统、环境与设备监控系统、消房泵及消防水管电保温设备、通信、信号、变电所操作电源、站台门、防火卷帘、活动挡烟垂壁、自动灭火系统、事故疏散兼用的自动扶梯、地下车站及区间的废水泵等应采用双重电源供电,并应在最末一级配电箱处进行自动切换。其中,火灾自动报警系统、环境与设备监控系统、变电所操作电源和地下车站及区间的应急照明电源应增设应急电源。
11.1.3 车站内设置在同一侧(端)的火灾事故风机、防排烟风机及相关风阀等一级负荷,其供电电源应由该侧(端)双重电源自切柜单回路放射式供电;当供电距离较长时,宜采用由变电所双重电源直接供电,并应在最末一级配电箱处自动切换。
11.1.4 防火卷帘、活动挡烟垂壁、自动灭火系统等用电负荷较小的消防用电设备,宜就近共用双电源自切箱采用放射式供电。
11.1.5 应急照明应由应急电源提供专用回路供电,并应按公共区与设备管理区分回路供电。备用照明和疏散照明不应由同一分支回路供电。
11.1.6 消防用电设备作用于火灾时的控制回路,不得设置作用于跳闸的过载保护或采用变频调速器作为控制装置。
11.2 应急照明
11.2.1 变电所、配电室、环控电控室、通信机房、信号机房、消防水泵房、事故风机房、防排烟机房、车站控制室、站长室以及火灾时仍需坚持工作的其他房间,应设置备用照明。
11.2.2 车站公共区、楼梯或扶梯处、疏散通道、避难走道(含前室)、安全出口、长度大于20m的内走道、消防楼梯间、防烟楼梯间(含前室)、地下区间、联络通道应设置疏散照明。
11.2.3 应急照明灯具宜设置在墙面或顶棚处。
11.2.4 应急照明的照度应符合下列规定:
1 车站疏散照明的地面最低水平照度不应小于3.0lx,楼梯或扶梯、疏散通道转角处的照度不应低于5.0lx;
2 地下区间道床面疏散照明的最低水平照度不应小于3.0lx;
3 变电所、配电室、环控电控室、通信机房、信号机房、消防水泵房、车站控制室、站长室等应急指挥和应急设备设置场所的备用照明,其照度不应低于正常照明照度的50%;
4 其他场所的备用照明,其照度不应低于正常照明照度的10%。
11.2.5 地下车站及区间应急照明的持续供电时间不应小于60min,由正常照明转换为应急照明的切换时间不应大于5s。
【免责声明】本文来源于蓝焰瞭望台,版权归原作者所有,内容仅供交流与学习,不构成任何商业目的。版权归原作者所有,如涉及作品内容、版权和其它问题,请及时与本站联系,我们将在第一时间处理。谢谢!
推荐阅读:
一文详解地铁设计规范
https://www.onewedesign.com/shangyekongjiansecaisheji/56-1240.html
专卖店设计_连锁店设计_万维商业设计公司
https://www.onewedesign.com/pinpaisheji.html