路过苹果店的时候,总能感受到一股高级感。那这股高级感从哪来呢?主要就和它的玻璃立面有关。
乔布斯认为,苹果商店能够帮助公司打造品牌,商店的存在,不仅是卖产品,还要向顾客展示苹果产品的优势,这也是为什么苹果店选择玻璃立面的原因。用巨大的落地玻璃开放视觉创造品牌的信任感,令人感觉「通透」,一眼就看清内部,从建筑结构到包边,那些顶天立地、一面到底的玻璃,每块接缝都是设计师的精心设计与制作。
这些都出自谁的手呢?他们是由总部位于伦敦的工程设计公司 Eckersley O'Callaghan 来完成的。

△Eckersley O 'Callaghan 团队
Eckersley O 'Callaghan 是一支由结构和外墙工程师组成的团队,从事各种建筑项目,从传统的木材、钢铁到混凝土结构,再到立面和定制的玻璃结构都有项目涉及。

刷爆全网的「天空泳池」就是他们设计的。

在过去的十年里,Eckersley O 'Callaghan 更是为苹果在各个城市的旗舰店做玻璃立面结构,从平面到曲面,不停地在创新。
# 平面玻璃 #
先来说说平面的玻璃幕墙。
苹果公司的白色玻璃取代了传统的墙体结构,与此同时,为了减少视觉负担营造轻盈、没有边界的空间效果,会最大程度减少了玻璃块的使用。
翻新后的纽约旗舰店就很好的诠释了这一点。
纽约第五大道苹果旗舰店改造前后对比▽



米兰自由广场的这家苹果店,8 米高的「水幕入口」设计也非常有亮点,这个扁长的立方体类似纽约第五大道苹果店,但玻璃幕两侧有层叠式喷泉,让人感觉像是在水中穿梭。



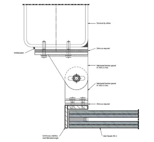
再以杭州店为例,为了看起来更简约,室内高度设为 15 米,而且地面没有立柱,立面只有 11 块宽约 3 米玻璃面板,从地面直达天花板,中间毫无间隔,这样的设计不管是对安装还是对工艺的要求,都是非常严格且精准的。

△苹果杭州西湖店
Eckersley O 'Callaghan 将玻璃固定在顶部的支架结构上,主体设计的十分巧妙且拥有防风防震功能。

△安装节点大样图
简单受力示意图▼



之所以选择 11 块玻璃而不是 9 块或者 12 块,是为了保证苹果的 logo 可以放在正中央一块完整的玻璃上。

位于土耳其伊斯坦布尔的苹果旗舰店,运用 4 块宽 10 米,高 3 米的玻璃围合天窗四周,顶部是带苹果 logo 的碳纤维增强塑料 (CRFP) 面板,此设计不光能让自然光进入地下商店中,也作为商店的视觉路标。

(CRFP) 面板设计成「预弯曲」形状,不会积水▽


阿布扎比亚斯购物中心的苹果旗舰店同样也是选择了巨型玻璃墙设计▽

# 夹石材玻璃 #
当然除了透明的白玻璃外,Eckersley O 'Callaghan 通过与玻璃制造商 Glas Trösch 合作,又开发了一种新材料,他们将石材层作为夹层安装在玻璃中。经过精细的建模 (FEM) 和实验测试,最终制作出样品。


在苹果澳门专卖店的设计中就用到了这一材料,当灯光打到墙面上,会营造出一种光线穿透石墙的错觉,提升了建筑在视觉上的另一种通透感。


5 层厚的玻璃▽


# 曲面玻璃 #
随着工艺的不断突破,Eckersley O 'Callaghan 随后又开始思考将弧形玻璃运用到里面中。

上海浦东苹果旗舰店的店入口处,就安设了圆柱形玻璃塔,革命性的重新定义了苹果店原有的方形玻璃立面。

13m 高的弯曲钢化夹层玻璃板制成一体,曲面玻璃被设计成一个「骨架」,重力载荷从这个骨架向四周分散,连接的钢配件也都经过精心设计。


宁波的苹果专卖店,采用的则是凹面玻璃面板的立面设计,店面呈弧形,与周围建筑的轮廓相匹配,这也是第一家使用了 12.5 米高的凹形绝缘玻璃做立面的苹果店。

玻璃面板使用冷弯层压技术,由于冷弯玻璃回弹效应的程度未知,因此设计团队在设计之初就做了大量的数据分析和建模来测试玻璃性能。

△冷弯玻璃的制作过程
立面顶部与钢筋混凝土梁之间的界面▽

同时设计师还加强了固定结构,并带有层压配件,用于更好的连接到弯曲的玻璃。
迪拜购物中心的苹果旗舰店,Eckersley O 'Callaghan 为其提供了 11 米高的结构玻璃和立面工程服务。
该结构是一个跨越两层楼长 56.6 米的弧形立面,并带有一个宽 5.5 米的露台。

△建筑玻璃范围
11 米高的弧形朝南玻璃幕墙,由 18 个电动「太阳能翼」玻璃窗组合而成,经过分析建模表明,这些「太阳能翼」的存在是为了更好的应对迪拜极端环境而设计的,尤其是在冬季,由于太阳位于地平线较低处,太阳能增益最大。

双层玻璃采用高性能热涂层,与遮阳百叶窗配合使用,作为能源管理策略的一部分。
立面全局模型▽

正面侧连接▽

再来看一下苹果的新总部,同样是革命性的玻璃结构设计,入口处由直径为 41m 的玻璃墙支撑着一个碳纤维屋顶,尺度之大是过去5家店的总和还不止。
△空间示意图
玻璃由四层 12mm 厚的板层组成,没有任何额外的框架,该建筑是世界上最大的仅由玻璃支撑的结构。

由于库比蒂诺位于高地震区,考虑到玻璃的特性,结构标准尤其具有挑战性,设计师采用了多种策略来模拟地震活动,最终决定将弯曲的玻璃面板用结构硅胶固定在钢槽底座中,以传递地震能量,钢板经过精心设计,可在玻璃破裂之前变形,从而保护整体结构的完整性和坚固性。

建筑的碳纤维屋顶是由 44 块径向板组成,直径为 60m,高 7m,重 80 吨,这些板是在工厂制作好再到现场组装的。
结构系统的设计更是将屋顶所需的导管、喷水管、音频和安全系统容纳在了玻璃板之间的 30 毫米接缝中。

参数化屋顶示意图,通过不同的结构形式,最后优化出最轻的版本▽

屋顶安装过程▽

# 球形立面 #

位于新加坡的苹果金沙店,设计更为巧妙,它是第一家直接坐落在水面上的苹果店,也是 Eckersley O 'Callaghan 最具标志性的结构与立面工程。

该设计是首创的全玻璃穹顶结构,整体高 17m 宽 30m,由 114 块玻璃板和 10 个用于结构连接的垂直竖框组成,最大的玻璃面板尺寸为 10m 宽 x 3m 高。
中空玻璃板之间的接缝也都完美的隐藏在有结构的地方,从而增加建筑物的整体透明度。

位于顶部中央的圆形圆顶玻璃面板,在发生火灾时,相邻的玻璃板会升起打开,以释放建筑物内的烟雾,其中还设有包括照明和自动喷水灭火系统。

立柱与横梁连接▽


圆顶结构内部是一个全开放和无柱空间,圆顶周围的挡板起到防眩光和吸音板的作用。

# 玻璃楼梯 #
玻璃楼梯也是苹果店的一个标志性存在,当然这也都是由 Eckersley O 'Callaghan 完成安装的。


△土耳其苹果店
2002 年,纽约曼哈顿 Soho 区格林街的旧邮局进行了翻新,成为世界上第一家苹果旗舰店。当时的玻璃楼梯就是由史蒂夫·乔布斯亲自设计,并在 2007 年注册了玻璃楼梯的专利。

翻新后的纽约曼哈顿苹果店,基于原玻璃楼梯做了重新设计,玻璃纵梁以 13 米长的形式形成,扶手做单一整体没有拼接,楼梯可承受重量超过两吨。

楼梯细部▽


同立面一样楼梯也从直角变成了旋转楼梯,为了防走光,楼梯的踏板也都做成雾面效果。


△苹果上西区店
日本东京苹果旗舰店内细长的旋转楼梯,在设计之初设计师就详细考虑了结构在个人使用和人群载荷下的情景,并在荷兰制造商车间制作出模型,进行各种测试后,才将楼梯被拆开运输到现场重新组装。


Eckersley O 'Callaghan 还与 Foster + Partners 合作,在苹果新总部设计了一座 12.8m 高的玻璃电梯,这是世界上最高的独立式玻璃电梯,也是第一个在螺旋导轨上旋转的电梯。


# Vidre-Slide #
这个有趣的玻璃雕塑名为「Vidre-Slide」是 Eckersley O 'Callaghan 与玻璃制造商 Cricursa 合作研发的一项弯曲玻璃的技术。
玻璃雕塑由 4 米高的三角玻璃结构和 9 米长的滑梯组成,采用的是最新的创新技术,利用紧密曲率的玻璃和少量粘合剂粘合,可最大限度地提高透明度,一体成型的设计也无需机械连接固定。

△玻璃滑梯
两个长玻璃元素相互支撑,底部通过钢结构绑在一起,确保结构的整体稳定性,滑梯部分由半径为 450 毫米的半圆柱体的退火玻璃制成。



△玻璃的弯曲形式是实现结构大跨度的关键
玻璃踏板使用 TSSA 粘合到弯曲的玻璃表面上,这种粘合剂几乎看不见胶痕,且有很强的粘合作用,能够承受较大的重量。



Vidre-Slide 的出现不仅体现了工程师和制造商之间的完美协作,也成功的测试新兴玻璃技术在实际中的应用。
