15768562771
EN
新闻中心
探索前沿设计 获取最新企业动态
国外原生态市场赏析
  • 作者:onewedesign
  • 时间:2023-11-27
  • 浏览:541
下面该项目为了更好地推进梅尔斯塔德地区与蓬勃发展的格罗宁根市之间的关系,并为该地区打造一个具有互动功能的社交空间,为此处设计了一个多功能、包容性的核心建筑。

▼项目概览



绿色心脏的中心
梅尔斯塔德是格罗宁根市的一个新兴地区,因拥有开阔的地貌、丰富绿植和沃尔德迈尔休闲湖而广受欢迎,在未来的几十年里,计划在该地区建造一个拥有5000套新住宅的活力城区。考虑到未来的扩张,以及满足居民购物、聚会和用餐等需求,业主方期望在此处打造一个富有吸引力的社区中心,因此,在可持续性和生活质量为核心的前提下,设计了这座引人注目的超级枢纽中心。
▼项目外观



现代市集大厅


超级枢纽社区中心作为传统市集大厅设计的创新演绎。宽敞透亮的圆形外观,以及全部由十字形层压木柱和横梁组成的支撑结构,使其拥有如大教堂般的外观。而建筑的大跨度和9米高的天花板,不仅为室内创造了一个特别明亮的空间,同时也为未来灵活的布局以及用途调整提供了机会。这座延伸超过五米的大天篷不仅可为空间提供防晒,在优雅的柱结构和网状木桁架的作用下,使建筑自然融入周围绿植环绕的环境。结构中精心设计的交叉形式在确保无需额外抗风系统的情况下,为建筑提供了良好的稳定性;而木质结构的选择也为气候带来积极影响。
▼不同视角的建筑外观



生态性和可持续性


超级枢纽是一个由市集和购物中心组成的现代综合体,游客既可以在这里购物,也可以在时尚的咖啡馆驻足停歇。其中,经久耐用的建筑结构,为未来的调整或增建提供了更多可能性。而灵活、开放的布局使其可以随着社会需求的变化而改变,这也意味着它在未来不会因为过时而被拆除。20年后,这座建筑或将容纳包含社区中心、博物馆又或是住宅等新功能。在这种情况下,也向众人展示了自身可随着梅尔斯塔德地区发展而发展的适应力,最终成为一个经得起未来考验的社区中心。


▼外立面



屋顶已预留用于放置太阳能电池板和蜜蜂及昆虫所需的植物区域。内置的空气处理装置,以及地暖和冷气储存,为室内空间提供了最佳温度,同时减少能源消耗。而且,该结构的设计还能减弱与承受格罗宁根地区的震感。此外,超级枢纽的灵活布局使其能够满足一系列如社区聚会等功能和活动的需求。


▼由柱结构和网状木桁架组成的支撑结构



▼交叉形式为建筑提供了良好的稳定性



▼交叉结构近景



多样化和多功能


超级枢纽为梅尔斯塔德社区提供了多种功能需求,目前内部包含一个超市和一间咖啡馆。除了作为居民食物供应的来源,这座开放宽敞的建筑还可以作为一处大众聚会的场所。设计目标是希望打造一场个性化与社交化兼具的购物体验,同时为居民提供耳目一新的选择,以取代日益流行的快递服务。而该建筑令人印象深刻的空间品质对于实现其作为一个具有吸引力和多功能社区中心的目标至关重要。在这个基础上,超市不仅成为了一个日常采买的场所,也是一个促进社会大众相互交流的媒介,进而有助于发展梅尔斯塔德社区的社会可持续性。


▼室内咖啡馆



▼超市内景




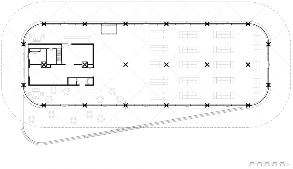
▼项目平面图



▼剖面1



▼剖面2



▼剖面3



文章来源于网络,版权归原作者所有,内容仅做分享,不具有任何商业用途 转载好文目的在于增进业界交流,若作者和原始出处不准确还望谅解修正,如有侵权请联系我们,小编会立即删除并表示歉意。谢谢!



在线
咨询
联系
我们

致电品牌顾问

扫码
关注
二维码
在线
留言
立即提交您的需求
我们将安排设计总监与您联系

姓名:*

电话:*

店铺类型:*

立即提交
返回
顶部