15768562771
EN
新闻中心
探索前沿设计 获取最新企业动态
国外菜市场设计经典案例赏析
  • 作者:onewedesign
  • 时间:2019-06-12
  • 浏览:12685

在传统集市的没落、购物方式的转变、交通流量的增加、物流方式的变革这样的背景下,倒逼菜市场对自身进行调整革新。而在近两年,菜市场开始迎来全面的复兴,菜市场成为推动城市的振兴、促进社区多样性,提升社会公共健康水平的助推器。


菜市场迎来一个全新的时代,成为另一种连接城市居民的网络,现代市场已经不再是纯粹的销售生鲜产品的地方,这里也将成为一个社交空间,或是热门旅游打卡地,亦或是商业综合体。

然而任何一个菜市场的规划和设施的配置情况都取决与项目所在地区的经济和社会等因素,因此菜市场新建或是改造都需要重新考虑其规划要点,以其能够应对未来10~25年之间的使用。


今天万维商业空间设计与大家分享几组国外菜市场设计案例。


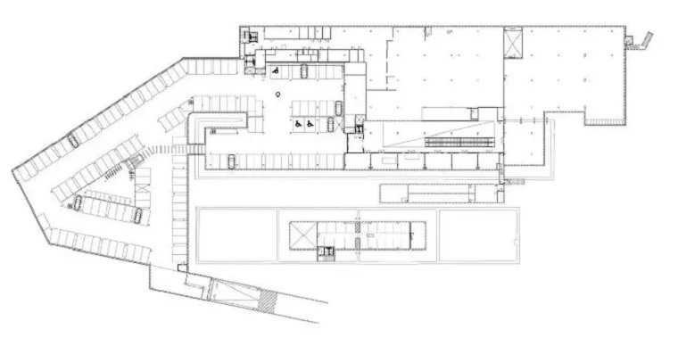
① Thailand Food Villa Market


对于一个特别关心用户体验的综合市场来说,曼谷食品市场主要的挑战就是把普通的菜市场变成“我想去的地方”而不是“我该去的地方”。该项目的设计主旨在通过将现代百货商店与更为传统的泰式市场相结合,将这座建筑与公众密切联系起来。


Food Villa市场是一个当地的、日间开放的露天市场,这是一个标准很高的新鲜瓜果市场,提供各种各样的高品质食品和符合生活习惯的商店,而且市场中商品的价格都很合理。规划的项目占地面积约25000平方米,由四个主要建筑体组成:一个有400个摊位的新鲜瓜果市场(占地4000平方米),一个带精品店的两层楼餐厅,和一家二十四小时超市,以及一个宠物、植物花卉区。


菜市场设计


主要的市场建筑体量设计于2013年,并于2015年正式完工。这栋建筑体量代表了“食品生产农场”,市场由农舍的形式发展而来,每个单元互相融合,并按照顺序形成了一个整体。建筑体量的外墙是半透明的设计,这使得光线可以进入建筑体量的内部,并使得建筑体量在晚上可以发光。


市场中的通风设备间隙被分成了两层,建筑体量本身人字形屋顶上有一层,每个高度的屋顶的分裂层之中有一层。我们保存了混乱的标志和材料的安排,以便创造出一种泰式市场的氛围。

 

菜市场设计案例

菜市场设计案例

菜市场设计案例

菜市场设计案例

超市设计案例

超市设计

泰国Food Villa市场平面图

泰国Food Villa市场


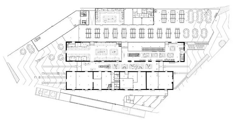
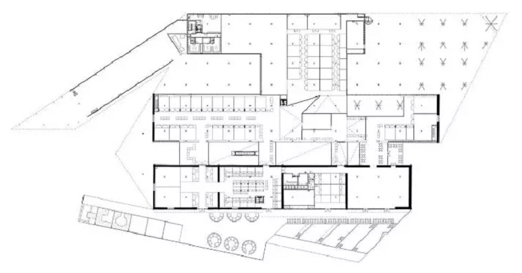
② 爱沙尼亚波罗的海车站市场


波罗的海车站市场位于塔林市北部,在城市主火车站和人气很旺的卡拉玛加居住区之间。自1993年以来,这里就是以提供独特的后苏维埃时代体验而闻名的怀旧市场。本次改造设计的目标是创建一座现代化和多样性的市场,同时还要保留该市场原有的历史特征,其熙熙攘攘的买卖氛围和嘈杂的环境不予改变。


以便吸引更多的潜在目标顾客,从乘坐火车的旅客到当地居民,从年轻人到游客,甚至任何一位碰巧会穿过市场的人等。


爱沙尼亚波罗的海车站市场


市场的主立面由三个两层高的石灰石仓库(始建于1870年)组成。主要扩建部分则包括用于容纳新功能空间的地下室和一个独立的统一式坡屋顶,其形状遵从原有房屋的形状和尺寸设计。



市场内部的改造建筑中依据三层既有平面和平面之间的空间进行布局。屋顶的前部被保留下来用于组织开放的户外市场,老市场在1993-2016年间就在此处设立了室外市场,人们自然而言就会觉得它就应该设在那里。室外市场的后面是一排排的小木棚,用于诸如面包、糖果、香料等小型商品买卖活动。



前方室外市场的两侧分别是早市广场和夜市广场,二者的名字分别指代了一天当中最好的两段时间。两个广场通过缓坡和露台彼此连接,并在两侧设置有用于餐饮和休息的休闲区、供孩子们玩耍的游乐场和服务于咖啡馆及餐厅的室外露台。


爱沙尼亚波罗的海车站市场


市场首层平面的主要目标是渲染出一种熙熙攘攘的的买卖氛围。这种理想中的环境通过集结各种市场形式并将其聚集于一层内的方式达成。市场中的经典功能模块是售卖肉类、鱼类和奶制品的小摊位,它们与农贸市场、蔬菜摊和中央大街上的街边食品街并排站在一起。将这些功能整合在一起之后形成了一个全新的体验波罗的海车站市场的方式。

 


二层平面主要用于容纳原有市场的保留项目,例如古董、二手货和服装等,但是这一层的新建部分还加入了爱沙尼亚风格的设计品、工艺品和家居用品。高大宽敞的木条天花板和充足的自然光在整个二层空间内营造出开放而通风的环境。为了能充分利用首层平面的美丽景观视野,餐馆和酿酒厂设置在这一侧,二者均设有室外露台,朝向正午的阳光设置。


爱沙尼亚波罗的海车站市场


就是建筑内部而言,主要力量集中在如何展示原有市场的历史性和如何有意识地避免创造全新的历史细节上。建材的色调通过各种颜色的砖和与砖大小相同的瓷砖颜色组成。商店的正面和栏杆采用木材和黑金属制造。总体照明采用温暖而稳重的色调,在需要的情况下,特定货品和商业则采用特定的照明模式。


爱沙尼亚波罗的海车站市场


该项目的总体目标是支持和鼓励许多不同的商贩在这里安家落户,使他们能够在此积极地进行各种商贸活动,改建后的市场于2017年5月开放,开放第一周内就吸引了230000位游客前来。


总平面图
爱沙尼亚波罗的海车站市场

地下一层平面图

爱沙尼亚波罗的海车站市场

一层平面图

爱沙尼亚波罗的海车站市场

二层平面图


③ 瑞典马尔默市场


马尔默位于瑞典的南部,作为瑞典的第三大城市,这里是重要的贸易中心。2016年占地面积约1500㎡的马尔默市场隆重开业。他的前身是一个旧货运站,1955年之后Martin and Nina将这座空置的建筑买了下来。在马尔默开一个市场一直是这对兄妹的梦想,他们觉得这座城市缺少这样的东西。


原始建筑

效果图


将当时连屋顶都没有的空壳建筑改造成供大约20个商户和餐馆使用的市场,设计师在原有建筑的基础上模仿它的山墙轮廓进行扩建,为了保留该建筑原有的工业特征,他们使用了红色锈面的波形钢片。“扩建的立面是合理的,使用标准化的波纹钢与突出的、垂直的钢型材相结合,使立面在窗框和门廊上具有节奏和稳定性。”项目建筑师解释说。





马尔默市场大厅的西面是一个公共广场,可以容纳户外摊档和活动,而南部则有一个额外的户外座位区,专门为种植食物而设计。





同时,马尔默市场内部有意保持简单,为了凸显出食品才是市场的主角,设计师选择黑色作为主色调,大面积运用在了市场内部,天花板、各种建筑结构、指示牌等。缤纷多彩的食物蔬果与黑色搭配显得更加新鲜诱人!


市场内的各个商户和餐厅也是经过严格的挑选的,每个候选人都必须有一个关键的品质,就是对他们对自己技艺的热情,由这样一群人组合在一起,共同建立一个让每个人都很享受的地方。



Martin and Nina 说:“当人们的口味融合在一起的时候,这座50米长的建筑开始成为美食家、饥饿的午餐客和热情的厨师找寻美食的目的地” 。


国外菜市场设计平面图
▲平面图


万维商业空间设计一直以来坚持初心,做原创的、以消费者为中心的、符合品牌定位的设计。多年来专注于精品超市、购物中心、百货、街区、菜市场设计,认真对待每一个项目,不放过每一个细节。未来,商业设计领域将不断的创新、改革甚至颠覆,万维将一如既往的跟随时代的潮流,做引领行业的商业空间设计。更多设计案例请浏览万维设计官网:http://www.onewedesign.com

推荐阅读:
7-11/全家/罗森三大便利店品牌便利店设计借鉴_万维设计
http://www.onewedesign.com/wanweidongtai/12-762.html
万维设计|办公空间的设计要点
http://www.onewedesign.com/wanweidongtai/12-677.html

在线
咨询
联系
我们

致电品牌顾问

扫码
关注
二维码
在线
留言
立即提交您的需求
我们将安排设计总监与您联系

姓名:*

电话:*

店铺类型:*

立即提交
返回
顶部