如果是处女座的设计师逛商城,那逛的可就不是“商场”啦!各种留意空间材料质感,眼睛像照相机一样记录每一个细节,这几乎是通病了。其中好的卫生间设计细节,更是分分钟可以打动处女座设计师的心。
那么一个好的商业空间的卫生间布置,应该怎么“摆”呢?动线安排怎样才能不让人们“兜圈子”?本期将重点围绕以下5个方面,来解答你的疑问:
1. 公共空间卫生间的标识设计;
2. 商业空间卫生间平面布置原则;
3. 商业空间卫生间平面布置要求;
4. 卫生间基本单元概念;
5. 商业空间无障碍专用卫生间。
01.
公共空间卫生间的标识设计
公共空间卫生间的标识是一种通用的“国际语言”,它是图形、色彩、文字或者其组合,表示公共区域或设施的用途和方位,提示和指导人们的行为。



△source:pinterest
上图中这些标识设计都存在些许的不可识别和模糊界限的概念,虽然极具创意,但是正常来说是不可取的。好的标识设计应明确指向,表明用途,具备一定的提醒作用,设置在醒目的位置。
02.
商业空间卫生间平面布置原则
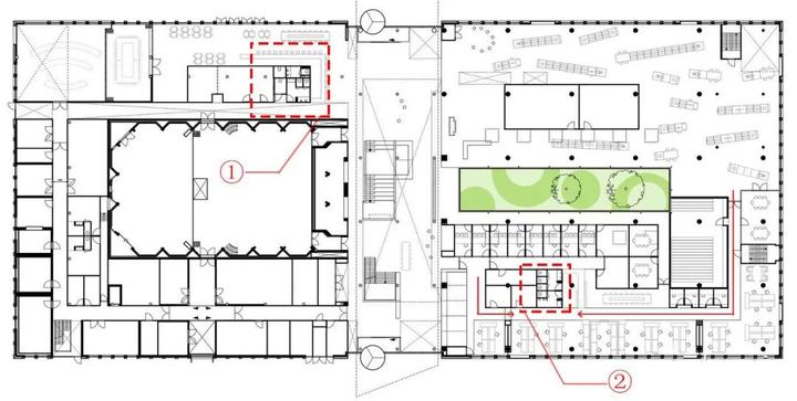
1、在大体量商业综合体的平面布置中,卫生间的布置并不是想放哪就放哪的,需要考虑到以下2点:

▲(总平面图一)
a、遵循原建筑的给排水管道,市政管网,机电点位,采取就近布置卫生间的原则。需要注意的是,如果改动的卫生间区域范围较大,还涉及到二次机电改动,需要出具各专业的综合图纸。

▲(总平面布置图二)
b、遵循空间设计原则,即卫生间的布置和其它功能区串联成一个整体,动线流畅,不单独孤立,轴线对称,满足空间密度等。需要注意的是,在这一步的设计如果可以合理利用建筑的“灰空间”(指建筑与其外部环境之间的过渡空间)进行设计,甚至可以达到节省建筑面积,为客户创造商业价值目的。
03.
商业空间卫生间平面布置要求

△source:pinterest
1、建筑物的厕所、盥洗室、浴室不应直接布置在餐厅、食品贮存、医疗、变配电等有严格卫生要求,或防水、防潮要求高用房的上层。
2、公共卫生间内产生噪声的设备(如水箱、水管等),不宜安装在与办公、宿舍、病房等相邻的墙上,若无法避免,则应有隔音措施。
3、公用厕所应适当增加女厕的蹲(坐)位数和建筑面积,男蹲(坐、站)位与女蹲(坐)位比例以1:1~2:3为宜,商业区以2:3为宜。
4、公用男女厕所宜分设前室,或有遮挡措施,无前室的卫生间外门不宜同办公、居住等房门相对。
5、公用厕所宜设置独立的清洁间,内设拖布池、拖布挂钩及清洁用具存放的柜架。(或男女厕所均设拖布池,现也有用水桶代替拖布池的做法。)
6、男女厕所宜相邻或靠近布置,便于寻找和上下管道集中布置,但应避免视线干扰。
7、室内宜有自然采光和直接自然通风,无通风窗口的卫生间应有机械通风换气措施。
8、楼地面应做好防水、排水、防滑、易清洁、防渗漏措施,墙面和顶棚应防潮。
04.
卫生间基本单元概念
如果将卫生间拆分为基本的几个单位,无非就是蹲便器、坐便器、卫生间隔断、小便器、洗手盆、洗手池、拖把池等这些基本元素。

△source:pinterest
所以只要了解了基本单元的“空间刚需尺度”就可以大致将卫生间尺寸推算出来。相信设计师通过掌握卫生间基本单元尺寸后,就能轻易摆脱在资料集里面找图块的“搬砖”思维。

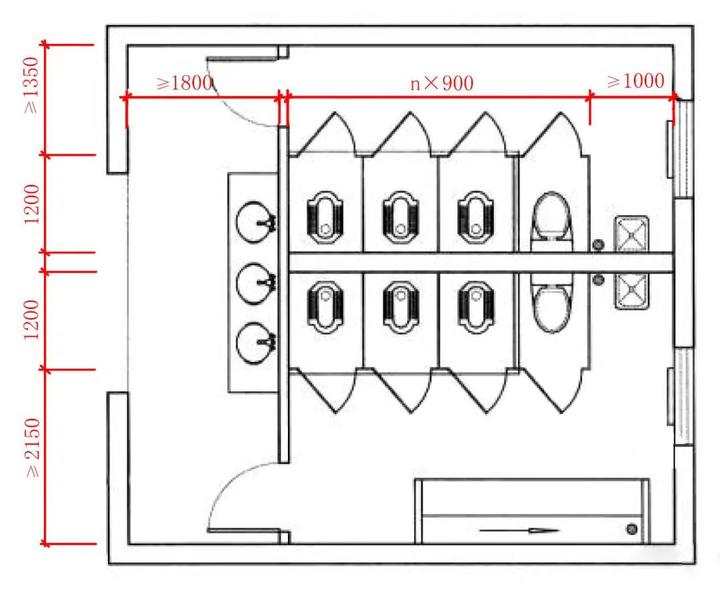
▲(卫生间设备基础单元)
1
熟记卫生间布置基本的尺度要求
a、卫生间外开门隔间900×1200,卫生间内开门隔间900×1400(单位:mm)。
b、小便器并排的中心距离应该≥650,拖把池空间≥1000×1200(单位:mm)。
c、洗手池并排中心距离≥700,靠墙洗手池距墙≥550(单位:mm)。
2
熟记卫生间组合单元尺寸要求

△source:pinterest

▲(隔间外开门)

▲(隔间内开门)
a、隔间外开门组合单元,通道距离≥1350,隔间内开门组合单元,通道≥1150(单位:mm)。

▲ (带小便池卫生间单元)
b、洗手池进门的通道≥1800 ,洗手台面宽≥500。正常成年人可以自如通过的距离为600,公共卫生间进门通道至少要允许两人并排进出,所以是1200(单位:mm)。
c、隔间外开门的通道距离≥1350,带小便池的通道尺寸≥2150(单位:mm)。

05.
商业空间无障碍专用卫生间

△source:pinterest
用一组案例来看无障碍专用卫生间尺寸要求:

▲(无障碍专用卫生间布置详图)
1、无障碍专用卫生间的长和宽尺寸均≥2000。(单位:mm)。
2、考虑到轮椅的活动半径在750,所以卫生间入口门尺寸应该≥800(单位:mm)。


▲(无障碍专用卫生间立面详图)


▲(无障碍专用卫生间抓杆详图)
3、坐便器高450,两侧应改设置700水平抓杆,在墙面一侧应设高1400的垂直抓杆(单位:mm)。
4、无障碍卫生间可设1200的挂衣钩,洗手盆两侧和前缘500处应设置安全抓杆(单位:mm)。
5、安全抓杆的直径应为30-40,内侧应距墙面的距离400(单位:mm)。
6、距离地面高400-500处应设置求助呼叫按钮(单位:mm)。
【免责声明】本文来源于1m建筑装饰沙龙,作者戴立军,版权归原作者所有,内容仅供交流与学习,不构成任何商业目的。版权归原作者所有,如涉及作品内容、版权和其它问题,请及时与本站联系,我们将在第一时间处理。谢谢!
推荐阅读:
五个小商业空间设计案例
https://www.onewedesign.com/biaoqian1/47-3556.html
如何打造爆火的小众主题商业
https://www.onewedesign.com/shangyekongjiansecaisheji/56-3202.html