15768562771
EN
新闻中心
探索前沿设计 获取最新企业动态
店面动线与布局
  • 作者:onewedesign
  • 时间:2020-11-27
  • 浏览:5753

想要做好“布局”和“动线”,必须先要知晓一个字,就是:逛。“逛”是便利店布局与动线设计的“魂”,它包含两方面意思:


1,要让顾客在店内逛店的过程中,达到-极度舒适;


2,不用力气寻找,想买什么商品-顺其自然的就能找得到。


说得容易但做到很难!我们现在就从便利店布局与动线设计两个角度研究一下,看看一家店面要如何做,才能达到这样的效果。


一、 内功


首先,我们必须了解,动线和布局是合在一起的,相辅相成的,他们两个是"1"而不是"2"。我们先来看下各自的定义:


1.动线:动线,就是顾客进入到你的店里后,行走的路线;很多人可能会问,面积大的卖场需要顾客动线设计。小型的便利店还需要考虑动线吗?


我想告诉你的是,小型店更需要动线,作为顾客你有没有这样一种感觉,很多你周边的便利店,你只是进入到了店面的1/3,剩下的2/3里面有啥商品,你根本都不知道。造成这个问题的原因就在于,大部分从业者,摆上货就卖,根本没有研究过这些。


2.我们再来看看布局的定义:门店的布局就是将一个门店,分割成不同的功能区,把不同的功能区,按照门店类型、商圈不同,重新排列组合的一个过程。


说白了,就是收银台放在进门左边还是右边?糖果巧克力放哪?乳制品放哪?酒水饮料放哪?……好的布局,能让顾客不用费劲寻找,想买什么,下一刻就能看到,让顾客一路滑着就到了收银台!基本上,在所有的回答中,在前面都是首先安放了相关概念的"定义"。但更重要的是,定义更多就像是心法,心法是要背的,一定要记下来的。知道了心法、原则,其他一切的招式,万变不离其中。很多人只记招式,不记心法。这只能让你,学到表面,无法“举一反三”,换一个场景就又乱套了。


二、外功(招式)


看完了内功,我们就来看外功(招式),我把招式分为几部分:


A,确定功能区


B,排列组合C,让布局会说话(动线)


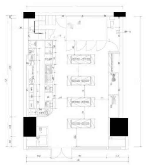
为了能给大家解释清楚,我们选择了一个方正一点的门店布局(下图),给大家做讲解。

便利店布局设计


这个网点,面积70平米,虽然入门处有两个柱子,但是影响不大。店还是很周正的,所以布局起来相对比较顺。为了方便大家理解,首先放置了一个简单布局在里面。如图,最下方两侧对开的是门,进门后左手边是鲜食操作区,鲜食操作区的对面全部都是常规商品区域了。下面开始,就详细给大家说明一下。


A,确定功能区


我们都听到过一个故事,一个马拉松世界冠军,在赛后被别人问道成功的秘诀时,他回答到:没什么特别的秘诀。我就是把整个马拉松的路程,分成若干个小段,每个小段用建筑、树木、广告牌等做成标记。每到一个位置,就告知自己又达成了一个目标,马上就达成所有的目标了。


其实,确定功能区,跟这个跑马拉松是一个道理。一个70-300平米的店面,任谁也无法一下就画出一个合适的布局。我们必须把这70平米进行重新分割,重新定义,而后重新组合在一起,最终才能做出一个合适的布局图。


下面,就让我来告诉大家如何确定功能区,一般来讲,所有的店面都有以下三个区域:热点区域、中性区域、冷点区域。


热点区域:顾客进入便利店后容易看到和必须经过的区域,要尽量陈列容易让顾客产生冲动型购买,或能特别引起顾客注意的产品,如鲜食、糖果、雪糕,促销品等。


中性区域:顾客容易看到,但不是必须经过要经过的区域,可陈列一些常规商品。如饼干、方便面、调味品、酒、咖啡等。


冷点区域:是指顾客既不容易看到也不必须要经过的区域,俗称“销售死角”!这样的区域,要尽量陈列顾客会主动去寻找的产品。如:日用品,调味品等。


那么,功能区设置呢,其实就是通过对品类布局的调整,让热点区域更热,冷点区域不冷的过程。区域有冷热之分,品类同样有冷热之分。比如:鲜食、饮料、香烟、酸奶……,这些品类就是热点商品,顾客需求量大,购买频次高。我们只要把这些区域进行重新的排列组合,就能达到我们想要的效果。


B,排列组合


我们首先把门开到了左面,收银台也按放在了一进门的左手边,为什么非要放在左手边呢?因为人的习惯是向右走。很多人如果进店逛,会很自然的向右走。然后绕你店里一圈出来。这样就转过了冷点区。


第二,一进门口就是主通道,主通道的收银区陈列着香烟,旁边就是鲜食(速食)销售区域。这种布局一个是让热点商品更热,其次就是节省人工,不忙时,一个人都能照看过来。


第三,大家看到,我们把鲜食、饮料、低温奶等热点商品围绕店面摆了一圈。这个最主要的目的就是用热点商品引着顾客向里面走,从而让冷点区域不冷。


第四,各个区域之间都是有关联的,比如顾客从主通道走购买鲜食商品,在购买鲜食的同时,右侧就是冰镇的饮料,顾客很自然的就带上一瓶饮料。


同时,在购买鲜食商品等待的过程中,后面的货架上的商品也是一目了然,如何有好的商品,一定会让顾客,产生冲动从而进行购买。


C,让布局会说话(动线)


开头的时候,我们就说过,好的动线是让顾客拿着购物篮一路“滑”到收银台的。本来就是来买瓶水,但是却一不小心,拿着购物篮购买了一篮子的商品。


想要做的这点,布局和动线是不能分开的。如果说功能区是从大方向上确定了门店的布局;那么,动线就是从小品类货架上确定门店的细节布局。


比如有一个店,顾客进来看到有好吃的烘焙食品,习惯性的向右走,买完烘焙食品,看到了酸奶果汁,又过去选购了酸奶,旁边就陈列着自己喜欢的甜点,又拿了一个。一转身,又看到里面的美妆货架上出了新品,又站着看了一会,最后在店里绕了一圈后,准备走到了收银台进行结账。但走到门口的时候,又看到冰糕柜,拉开又拿了一个,最后结账出门。如果便利店布局设计的合理,就会产生这样完美的动线。我们看到,顾客是按照自己的需求,一路被你引导到收银台的。


所以,动线其实说白了,就是按照顾客的需求,利用品类商品陈列的关联性。进行细致布局后顾客行走的线路。


便利店布局设计

总结:

讲到最后,不知道大家还是否记得,文章一开始的那个“逛”字。不知道大家现在是否理解了这个字的精髓。其实,无论小店还是大店,亦或者是超大店。都需要布局动线的合理设计。大店有大店的打法,小店有小店的玩法,你学会了吗?


推荐阅读:
苹果店面设计案例,泰国第一家苹果旗舰店设计
http://www.onewedesign.com/xingyezixun/13-216.html
喜茶店面设计的新思路
http://www.onewedesign.com/xingyezixun/13-951.html

在线
咨询
联系
我们

致电品牌顾问

扫码
关注
二维码
在线
留言
立即提交您的需求
我们将安排设计总监与您联系

姓名:*

电话:*

店铺类型:*

立即提交
返回
顶部