“商场主入口”是商业空间与顾客接触的第一界面,也是给顾客留下深刻印象的关键点。一个设计精妙的商场入口,能够在瞬间抓住顾客的眼球。
今天我们一起看看:商场的主入口在设计中有哪些细节注意点?做好这些细节点瞬间提升顾客的体验感!
本期要点:
一、具体工作界面。
二、墙、顶、地细节注意点。
三、参考建议(尺寸、面积、南北方)。

01
工作界面.
· 哪些区域谁负责 ·
在商场主入口设计中,通常是由:
建筑设计顾问负责整体结构与布局,为后续工作奠定基础。
幕墙顾问依据案设计提供的造型轮廓进行深化设计,确保外观精美且具实用性。
室内精装团队专注于室内精细收口、装饰,提升空间品质感。
具体来说:
一道门和二道门由幕墙顾问负责,以保证其入口与整体建筑幕墙的延续性。
两侧墙面、顶面和地面的设计一般由室内精装团队完成,确保室内室外的装饰协调过渡。

02
细节注意.
· 墙 · 顶 · 地 ·
1. 墙面区域。
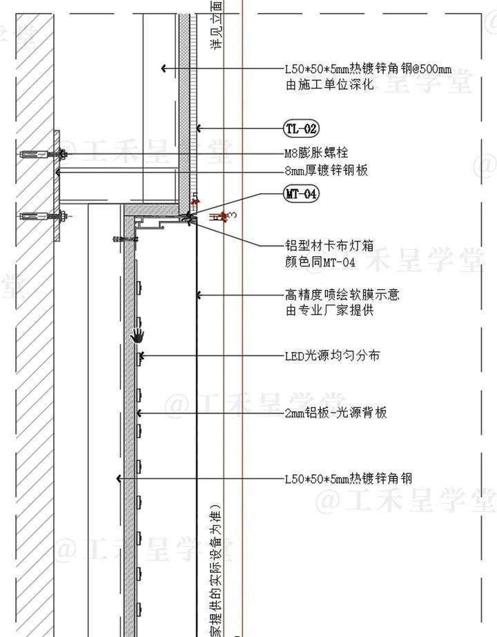
a. 卡布灯箱.
能够便捷的展示品牌标识或广告信息,建议最薄尺寸:150mm。


(卡布灯箱 节点示意图)
b. LED电子广告展示屏.
安装空间:至少200mm,需预留300mm的操作空间,检修空间通常在前方,无论是直屏还是弧形屏,都要确保有足够的空间进行散热和后期维护,避免因空间狭小导致设备过热或难以检修,同时也要考虑与周围墙面装饰的协调性,保证整体美观。


(LED电子广告展示屏 节点示意图)
c. 格栅屏.
具体尺寸需根据整体设计风格与空间布局进行合理安排。格栅屏由细长的格栅条组成,间距和密度可根据实际需求调整,能营造出独特的视觉效果和空间层次感,与卡布灯箱和LED屏搭配使用时,要注意整体画面的统一性和协调性,避免视觉冲突。


(电子折叠显示屏 节点示意图)

2. 顶面区域。
a. 排烟.
地下或半地下建筑(室)、地上建筑内的无窗房间,当总建筑面积大于200m²或一个房间建筑面积大于50m²,且经常有人停留或可燃物较多时,应设置排烟设施。(江苏浙江除外,建筑面积大于100㎡需要设置排烟设施)。
合理设置排烟口的位置和尺寸,确保在紧急情况下能够迅速排出烟雾,为顾客提供安全的疏散通道。同时,排烟口的外观设计也应与顶面装饰相融合,避免影响整体美观。

b. 灯光.
基础照明要保证光线均匀分布,照亮整个入口区域,避免出现照明死角;氛围照明则通过彩色灯光、装饰灯具等手段,打造独特的购物氛围,吸引顾客进入。

c. 风幕机.
风幕机一般安装在入口的正上方,确保风幕能够覆盖整个入口通行区域,以避免能耗浪费。
同时,需要与二次机电协调确定安装的位置符合气流组织要求,如果为吊顶嵌装的还需要配合考虑风幕机的取风。


(风幕机位置 示意图)


(风幕选择 示意图 仅供参考)
d. 客流统计.
客流统计设备的安装是帮助商场运营实时了解商场运营状况的重要设备。在顶面设计时,要选择合适的位置安装并且兼顾美观和数据拾取的正确性。

(客流统计器位置 示意图)
e. 疏散安装.
疏散指示标志和应急照明是商场安全疏散的关键设施,很多设计将疏散指示标安置于玻璃门上方或镶嵌在幕墙内。需要与幕墙顾问和二次机电顾问共同协商。
注意:由于个别设计玻璃门上方会顾及到美观导致边框很窄,在安装疏散指示标时需要采用后部支架固定。
如图:安全疏散指示牌前期未进行合理协商,最后只能外装。

3. 地面区域。
a. 防尘毯
在商场主入口处铺设防尘毯,可以有效减少外界灰尘带入室内,保持地面清洁,同时增加地面摩擦力,防止顾客滑倒,提供安全的通行环境。防尘毯的材质通常选择耐用、易清洁且具有良好防滑性能的材料,如橡胶、PVC等。

防尘毯按功能主要分为“疏水型”和“封闭型”。也有特殊的“不锈钢的刮泥毯”。

疏水型防尘毯:可快速导水,防止雨水积聚,保持地面干燥,减少行人滑倒风险,同时自身不易吸水变形,维护简单。

封闭型防尘毯:可有效阻挡灰尘、沙粒等杂物进入室内,保持环境清洁,且成本较低,适合干燥地区商场入口使用。

不锈钢的刮泥毯:具有耐腐蚀、强度高、耐用性强等特点。它适用于多种需要刮除泥沙、保持清洁的场合,如地下门厅或者消防扩大前室的范围等。

b. 地漏.
防尘毯下方合理设置地漏,防尘毯区域整体做极小坡度,用于排除防尘毯位置积水。

(地漏 节点示意图)
c. 石材围边
建议在防尘毯外侧增加石材围边,更好地与周边墙面饰面收口。

(石材围边位置 示意图)
03
参考建议.
· 尺寸 · 面积 · 南北方差异 ·
1. 主入口区域尺寸(仅供参考)。
主入口的门洞尺寸需根据商场的规模、人流量预测以及功能需求来确定。
通常建议,单个门洞的宽度不宜小于1.4米,高度则应保证在2.4米以上。如此设计,既能满足日常顾客顺畅通行,也能在遇到紧急情况时,有效减少人群拥堵,确保疏散效率。

对于大型综合商场,尤其是设置多个出入口的情况下,主入口的总宽度可控制在6米至12米之间,以应对高峰时段的大量人流进出以及消防疏散。

2. 面积(仅供参考)。
入口厅的面积,不仅要容纳顾客的瞬间聚集,还要预留足够的空间用于设置引导设施、安检设备等。
通常,按照每小时通过人数计算,入口厅人均占用面积应不少于 0.5平方米,以保障顾客在排队等候或通行时不会感到拥挤不适。
3. 南北方差异。
在北方,由于冬季寒冷且室内外温差大,商场主入口通常会设置双层门甚至保温被帘,以有效阻挡冷空气入侵,保持室内温度的稳定。
同时,入口处还会预留足够的空间用于顾客整理厚重的冬装,避免因衣物问题造成通行不便或拥堵。


(图片来源:小红书QHangwen)
在南方,气候相对温暖湿润,商场主入口更注重通风与遮阳设计。例如,会采用大面积的玻璃幕墙或设置塑料门帘,既保证了良好的采光,又能在炎热的天气里为顾客提供遮阳避雨的场所。

(图片来源:小红书-2673171693)
如果您还有其他问题或建议,欢迎在评论区留言哦!
(以上图片内容部分来源于网络非商用)
【免责声明】本文来源于工禾呈设计,版权归原作者所有,内容仅供交流与学习,不构成任何商业目的。版权归原作者所有,如涉及作品内容、版权和其它问题,请及时与本站联系,我们将在第一时间处理。谢谢!
推荐阅读:
商场怎么设计得好看
https://www.onewedesign.com/shangyekongjianshejizongjie/63-771.html
泰国经典商业案例分析
https://www.onewedesign.com/biaoqian1/47-2351.html